Ministru kabineta rīkojums
Nr. 519
Rīgā 1998.gada 27.oktobrī (prot.
Nr.58, 8.§)
Par
zemesgabalu nodošanu privatizācijai
1. Saskaņā ar likumu "Par valsts
un pašvaldību īpašuma objektu privatizāciju" nodot privatizācijai
šī rīkojuma 1.pielikumā minētos zemesgabalus, kas ierakstīti
zemesgrāmatā uz valsts vārda (zemesgabalu robežas norādītas šī
rīkojuma 2., 3., 4., 5., 6., 7., 8., 9 ., 10., 11., 12., 13. un
14.pielikumā).
2. Privatizācijas aģentūrai
pārņemt savā valdījumā, sagatavot privatizācijai un privatizēt šī
rīkojuma 1.pielikumā minētos zemesgabalus.
Ministru prezidents G.Krasts
Ekonomikas ministrs L.Strujevičs
1.pielikums
Ministru kabineta
1998.gada 27.oktobra rīkojumam Nr. 519
Privatizācijai nododamie
zemesgabali
|
Nr.p.k.
|
Adrese
|
Zemes kadastra Nr.
|
Platība (m2)
|
Ēku un būvju ieguvējs
|
|
1.
|
Rīga
Rūpniecības iela 32a
|
0100 011 2021
|
114
|
Sabiedrība ar ierobežotu atbildību "Pēterparks"
|
|
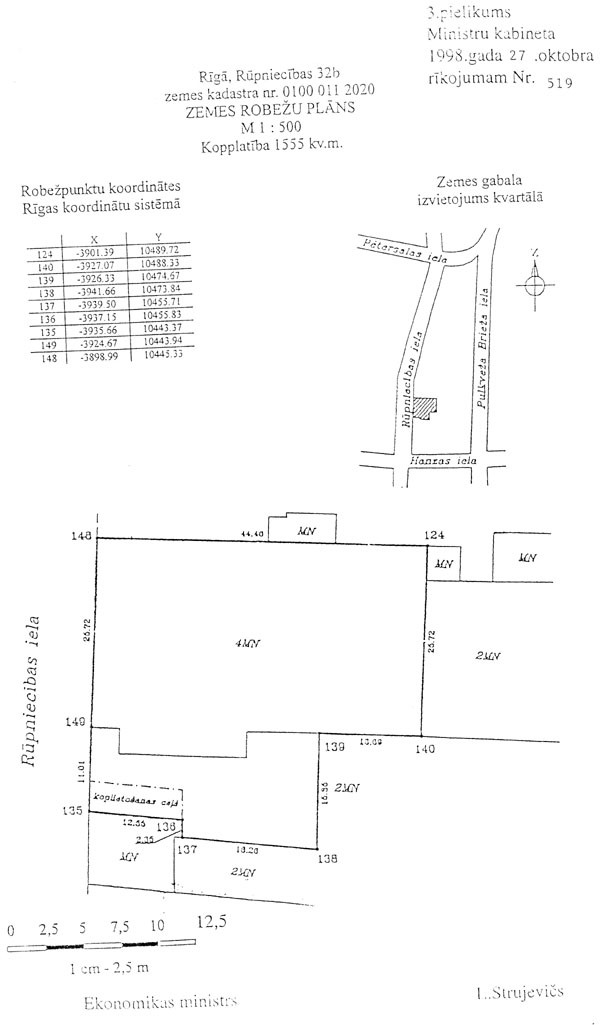
2.
|
Rīga
Rūpniecības iela 32b
|
0100 011 2020
|
1555
(4/5 domājamās daļas)
|
Sabiedrība ar ierobežotu atbildību "Pēterparks"
|
|
3.
|
Rīga
Ganību dambis 30b
|
0100 014 0164
|
11919
|
Sabiedrība ar ierobežotu atbildību tirdzniecības
komercfirma "Latekss"
|
|
4.
|
Rīga
Ganību dambis 30c
|
0100 014 0166
|
1018
|
Andrejs Švaronoks
|
|
5.
|
Rīga
|
0100 121 2090
|
1046
|
Energobūvmontāžas akciju
|
|
|
Ļaudonas iela 1
|
|
|
sabiedrība "REMUS"
|
|
6.
|
Rīga
Daugavgrīvas iela 61b
|
0100 063 0229
|
4400
|
Akciju sabiedrība "Rīgas grunts krāsas"
|
|
7.
|
Limbažu rajons
Skultes pagasts
"Laiciemkursīši"
|
6676 004 0059
|
3500
|
Sabiedrība ar ierobežotu atbildību "SK DEGVIELA"
|
|
8.
|
Rīga
Lilastes iela 3
|
0100 124 0285
|
615
|
Sabiedrība ar ierobežotu atbildību "RIPO-1"
|
|
9.
|
Rīga
Pērnavas iela 81
|
0100 038 0194
|
1050
|
Antoņjans Vačagans
|
|
10.
|
Rīga
Raudas iela 12a
|
0100 075 2020
|
9221
|
Sabiedrība ar ierobežotu atbildību "EURO-AUTO"
|
|
11.
|
Rīga
Āgenskalna iela 33
|
0100 060 0017
|
4879
|
Sabiedrība ar ierobežotu atbildību "Delfa"
|
|
12.
|
Rīga
Zentenes iela 21
|
0100 117 2016
|
5265
|
Sabiedrība ar ierobežotu atbildību "Trīs plus viens"
|
|
13.
|
Jūrmala, Dzintari
Dzintaru prospekts 21
|
1300 008 1109
|
3371
|
Sabiedrība ar ierobežotu atbildību "PILSĒTAS TORŅI"
|
Ekonomikas ministrs L.Strujevičs












