Precizēts
30.05.2000., Latvijas Vēstnesis Nr.191/192 (2102/2103)
Valsts zemes
dienesta instrukcija
Par būves
inventarizācijas vērtības noteikšanu
Apstiprināta ar Valsts zemes
dienesta
1999.gada 14.jūlija rīkojumu Nr.277
(labojumi apstiprināti ar Valsts zemes dienesta
2000.gada 4.janvāra rīkojumu Nr.1)
1. VISPĀRĪGIE
NOTEIKUMI
1. Šī instrukcija nosaka kārtību,
kādā veicama būves inventarizācijas vērtības noteikšana
neatkarīgi no būves piederības un īpašuma formas.
2. Instrukcijas mērķis - visā
valsts teritorijā noteikt vienotu kārtību, kādā veicama būves
inventarizācijas vērtības noteikšana un uzturēšana aktuālā
stāvoklī.
3. Būves inventarizācijas vērtības
noteikšanas uzdevums ir nodrošināt ar informāciju par būves
inventarizācijas vērtību:
3.1. valsts institūcijas:
3.1.1. kadastra reģistra
uzskaitei;
3.1.2. būvju tiesiskajai
reģistrācijai;
3.1.3. privatizācijas
vajadzībām;
3.1.4. valsts statistikas
vajadzībām;
3.2. pašvaldības un to
dienestus:
3.2.1. pirmpirkuma tiesību
realizācijai pie būvju transakcijām;
3.3. privātos lietotājus:
3.3.1. būvju transakcijām;
3.3.2. būvju apsaimniekošanai.
4. Būves inventarizācijas vērtības
noteikšanu veic Latvijas Republikas Valsts zemes dienests
(turpmāk tekstā - VZD).
5. Vērtēšanas objekts ir būve
neatkarīgi no tās piederības un atrašanās vietas.
6. Būves inventarizācijas vērtības
noteikšanai kā pamatmetodi pielieto izmaksu metodi.
7. Būves inventarizācijas vērtība
- uz konkrētu datumu pēc aktuāliem būves tehniskās
inventarizācijas datiem un būves vienības bāzes vērtības
aprēķināta būves vērtība, kas koriģēta ar fiziskā stāvokļa un
novietnes korekcijas koeficientiem.
8. Būves vienības bāzes vērtība
nosakāma, pēc būvju vienību cenu krājumos noteiktām būves
vienības bāzes vērtībām, kas atbilst konkrētās vērtējamās būves
tehniskajam aprakstam un izmantotiem būves konstruktīvo elementu
materiāliem un (vai) būvniecības tehnoloģijai. Gadījumos, kad
vērtējamai būvei apstiprinātajos būvju vienību cenu krājumos nav
atrodams atbilstošs būves analogs pēc izmantotiem būves
konstruktīvo elementu materiāliem un (vai) būvniecības
tehnoloģijas, ir izmantojamas vērtējamās būves būvmontāžas darbu
izmaksas, kas nosakāmas par būves vienību pēc vērtējamās būves
apstiprinātas būvdarbu izpildtāmes.
9. Būves inventarizācijas vērtība
nosakāma atbilstoši:
9.1. būves galvenajam izmantošanas
veidam;
9.2. būves vienības bāzes
vērtībai;
9.3. būves fiziskajam stāvoklim
(nolietojumam);
9.4. būves atrašanās vietai
(novietnei).
10. Būves inventarizācijas vērtību
nosaka pēc pasūtītāja rakstiska pieprasījuma.
11. Būves inventarizācijas
vērtības noteikšanu ir tiesīga pasūtīt persona, kam atbilstoši
Latvijas Republikas likumdošanas prasībām ir īpašuma, tiesiskā
valdītāja vai citas tiesības uz būvi un tā var šīs tiesības
dokumentāli pierādīt.
12. Būves inventarizācijas vērtību
nosaka būvēm, kam veikta būves pilna tehniskā inventarizācija un
ir aktuāli būves tehniskie dati (aktuāla būves tehniskās
inventarizācijas lieta).
13. Būves inventarizācijas vērtība
jāaktualizē (jānosaka jauna būves inventarizācijas vērtība),
ja:
13.1. ir mainījušies būves
tehniskie dati (t.sk. fiziskais nolietojums) un tie ir fiksēti
būves tehniskās inventarizācijas lietā;
13.2. mainīta būves vienības bāzes
vērtība;
13.3. mainīti (aktualizēti) būves
inventarizācijas vērtības noteikšanā izmantojamie korekcijas
koeficienti (2. - 4. pielikums).
14. Būves inventarizācijas vērtība
ir aktuāla (derīga):
14.1. kamēr būves tehniskās
inventarizācijas lietā fiksētie būves tehniskie dati nav
mainījušies un ir aktuāli (būves tehnisko datu derīguma termiņš,
bez izmaiņām būvē, ir 5 gadi);
14.2. ja nav mainīta būves
vienības bāzes vērtība (būves vienību cenu krājumi) un (vai)
novietnes korekcijas koeficienti.
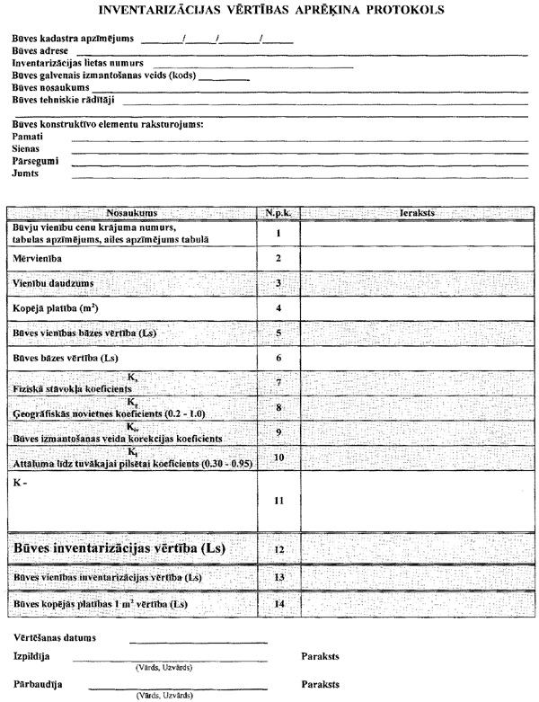
15. Būves inventarizācijas
vērtības aprēķins fiksējams būves inventarizācijas vērtības
aprēķina protokolā, kas sastādāms manuālā vai datorizētā formā
(6. pielikums) un pievienojams vērtējamās būves tehniskās
inventarizācijas arhīva lietai.
16. Ja būves pilnas atkārtotās
tehniskās inventarizācijas gadījumā fiksētas būves tehnisko datu
izmaiņas (būvapjoms, platības, fiziskais nolietojums u.c.), bet
jauns vērtējums netiek pasūtīts, tad būves inventarizācijas
vērtība dzēšama un nav spēkā esoša (ir neaktuāla) no būves
tehnisko datu izmaiņu reģistrācijas datuma.
17. Būves inventarizācijas
vērtības dzēšanas atzīme izdarāma inventarizācijas vērtības
aprēķina protokolā zīmoga vai rakstiskā veidā, gadījumā, ja būves
inventarizācijas vērtība ir neaktuāla.
18. Būves inventarizācijas
vērtība, ja tā ir neaktuāla, netiek uzrādīta Kadastra
reģistrā un visās no Kadastra reģistra izsniedzamajās uzziņās,
līdz ar to nav izsniedzama pasūtītājam.
2. BŪVES
inventarizācijas vērtības aprēķins
19. Nosakot būves inventarizācijas
vērtību, inventarizācijas vērtības aprēķina protokolā fiksē:
19.1. no būves tehniskās
inventarizācijas lietas:
19.1.1. būves kadastra
apzīmējumu;
19.1.2. būves adresi;
19.1.3. inventarizācijas lietas
numuru;
19.1.4. būves galveno izmantošanas
veidu (kodu);
19.1.5. būves nosaukumu;
19.1.6. būves tehniskos rādītājus
- vienību daudzumu un mērvienību (stāvu skaitu, būvtilpumu,
kopējo platību, laukumu, garumu u.c.);
19.1.7. būves konstruktīvo
elementu raksturojumu (izmantotos būves konstruktīvo elementu
materiālus un būvniecības tehnoloģiju);
19.1.8. būves fizisko
nolietojumu;
19.9. no būvju vienību cenu
krājuma:
19.2.1. mērvienību;
19.2.2. būves vienības bāzes
vērtību;
19.2.3. būvju vienību cenu krājuma
numuru;
19.2.4. tabulas apzīmējumu;
19.2.5. ailes apzīmējumu
tabulā;
19.3. būves inventarizācijas
vērtības noteikšanā pielietojamos korekcijas koeficientus:
19.3.1. fiziskā stāvokļa
koeficientu - Ks ;
19.3.2. ģeogrāfiskās novietnes
koeficientu - Kg ;
19.3.3. būves izmantošanas veida
korekcijas koeficientu - Kiv ;
19.3.4. attāluma līdz tuvākajai
pilsētai koeficientu (tikai būvēm lauku apvidū) -
Kl ;
19.3.5. pēc vērtētāja ieskatiem
piemēroto korekcijas koeficientu (+/- 20%) - K .
20. Būves inventarizācijas vērtību
aprēķina kā būves bāzes vērtības un korekcijas koeficientu
reizinājumu. Būves inventarizācijas vērtība noapaļojama līdz
veseliem latiem (sk. 7. pielikuma 12. ailīti).
21. Būves inventarizācijas
vērtības aprēķina vispārīgā formula:
BIV = BBV x Ks x
Kg x Kiv x Kl x K , kur
BIV - būves
inventarizācijas vērtība,
BBV - būves bāzes
vērtība.
22. Būves bāzes vērtību (BBV)
nosaka:
22.1. pēc būves vienības bāzes
vērtības, izmantojot būvju vienību cenu krājumus (1.
pielikums);
22.2. pēc apstiprinātas būvdarbu
izpildtāmes.
23. Būves bāzes vērtību nosaka pēc
sekojošas formulas:
BBV = BVBV x VBVD , kur
BVBV - būves vienības bāzes
vērtība,
VBVD - vērtējamās būves vienību
daudzums.
24. Būves vienības bāzes vērtība
vērtējamai būvei no būvju vienību cenu krājuma piemērojama
pēc:
24.1. būves galvenā izmantošanas
veida (LR Centrālās statistikas pārvaldes 1998. gada 13. maija
rīkojums Nr. 20 );
24.2. būves nosaukuma (5.
pielikums);
24.3. būves konstruktīvo elementu
raksturojuma;
24.28. būves vienību daudzuma
(būvtilpuma m3, platības m2, garuma m u.c.).
25. Būves fiziskā stāvokļa
koeficients Ks nosakāms pēc formulas:
Ks = 100 - Nolietojums
(%) / 1000 ; kur
Nolietojums (%) - no būves
tehniskās inventarizācijas lietas.
26. Ģeogrāfiskās novietnes
korekcijas koeficients Kg (2. pielikums) piemērojams visām
vērtējamām būvēm, gan pilsētās, gan lauku apvidos un ierakstāms
inventarizācijas vērtības aprēķina protokolā 8. ailītē (sk. 7.
pielikumu). Lauku apvidū esošām būvēm piemēro tuvākās pilsētas
(vai vairāku tuvāko pilsētu) ģeogrāfiskās novietnes korekcijas
koeficientu Kg . Attālumi līdz vērtējamai būvei lauku
apvidos nosakāmi no pilsētas robežas pa īsāko ceļu.
27. Lauku apvidū vērtējamām būvēm
ar neizteiktu vai neskaidru tuvāko pilsētu un lauku apdzīvoto
vietu ietekmi, ģeogrāfiskās novietnes korekcijas koeficientu
Kg nosaka:
27.1. no divām pilsētām vai lauku
apdzīvotām vietām, ņemot svērto vidējo skaitlisko vērtību no
abām;
27.2. no trijām pilsētām vai lauku
apdzīvotām vietām, atmetot augstāko un zemāko vērtību
ģeogrāfiskās novietnes korekcijas koeficientus, ņemot vidējo
korekcijas koeficientu;
27.3. republikas pilsētu tuvumā
esošām būvēm vērtēšanai ņem augstāko no republikas pilsētas vai
tuvumā esošās citas pilsētas ģeogrāfiskās novietnes korekcijas
koeficientiem.
28. Būves izmantošanas veida
korekcijas koeficients Kiv (3. pielikums)
piemērojams atkarībā no būves galvenā izmantošanas veida
atbilstoši būvju 1998. gada klasifikācijai CC.
29. Lauku apvidos korekcijas
koeficients Kl ir koeficients, kuru veido būves
attāluma līdz tuvākajai pilsētai koeficienta un Baltijas jūras un
Rīgas jūras līča ietekmes koeficientu reizinājums. Pilsētās,
nosakot būves inventarizācijas vērtību, korekcijas koeficients
Kl = 1.0.
30. Baltijas jūras, Rīgas jūras
līča krastu tuvumā (līdz 2 km) būvēm lauku apvidū piemēro
paaugstinošu koeficientu 1.5 - 3.0 atkarībā no attāluma, izņemot
Rīgas rajona robežās, kur piemēro koeficientu 1.0 - 2.0. Ja
dažādu ietekmes faktoru kopējais korekcijas koeficients lauku
apvidū esošām būvēm ir augstāks par blakus esošās pilsētas
apbūves kopējo korekcijas koeficientu, tas samazināms līdz blakus
esošās pilsētas apbūves kopējam korekcijas koeficientam.
31. Iegūto būves inventarizācijas
vērtību pamatotos gadījumos vērtētājs var paaugstināt vai
pazemināt līdz 20 % ( K = 0.80 - 1.2), vienlaicīgi
inventarizācijas vērtības aprēķina protokolā brīvā korekcijas
koeficienta laukā fiksējot:
31.1. būves inventarizācijas
vērtību paaugstinošos faktorus - būve atrodas īpaši sakoptā vidē,
izmantoti kvalitatīvi apdares materiāli un sanitārtehniskās
ierīces vai ir ticami dati par būtiskām tirgus un
inventarizācijas vērtības atšķirībām u.c.;
31.2. būves inventarizācijas
vērtību pazeminošos faktorus - būve atrodas nepievilcīgā,
nesakoptā vidē vai dinamisko slodžu aktīvajā zonā un būvē
vērojamas progresējošas plaisas, apgrūtināta piekļūšana, iztrūkst
kāds no konstruktīvajiem elementiem (piem. Jumts, kas atstāj
progresējošu negatīvu iespaidu uz pārējiem konstruktīvajiem
elementiem vai ir ticami dati par būtiskām tirgus un
inventarizācijas vērtības atšķirībām u.c.
32. Būves inventarizācijas
vērtēšana izdarāma, piemeklējot vērtējamai būvei būvju vienību
cenu krājumu un attiecīgo būves vienības bāzes vērtību, kas
atbilst būves tehniskajam raksturojumam.
33. Būves vērtēšanai piemērojamo
būvju vienību cenu krājumu izvēlas atbilstoši būvju
inventarizācijas vērtību noteikšanā izmantojamo būvju vienību
cenu krājumu sarakstam (1. pielikums).
34. Būves inventarizācijas
vērtības noteikšanai par pamatu ņem būves vienības bāzes
vērtību.
35. Būves bāzes vērtība koriģējama
ar korekcijas koeficientiem, kas noteikti no 19.3.1. līdz 19.3.5.
punktam.
36. Būvju vienību cenu krājumos,
kuros būves vienības bāzes vērtības izdalītas atkarībā no
iekšējās apdares (vienkārša vai uzlabota), jāpiemēro būves
vienības bāzes vērtība uzlabotai apdarei.
37. Nosakot būves inventarizācijas
vērtību pēc būvdarbu izpildtāmes, tajā fiksētā būves bāzes
vērtība koriģējama ar korekcijas koeficientiem pēc vispārīgās
formulas (sk. 21. punktu).
38. Būves inventarizācijas vērtība
aprēķināma uz konkrētu datumu, kurš fiksējams inventarizācijas
vērtības aprēķina protokolā ailītē "Vērtēšanas datums".
39. Būves inventarizācijas
vērtība, kas noteikta uz konkrētu vērtēšanas datumu, ierakstāma
inventarizācijas vērtības aprēķina protokolā 12. ailītē.
3. BŪVES
INVENTARIZĀCIJAS VĒRTĪBAS NOTEIKŠANAS darbu kontrole
40. Būves inventarizācijas
vērtības noteikšanas darbu kontroli tiesīgi veikt VZD nekustamā
īpašuma vērtēšanas speciālisti ar atbilstošu profesionālo
kvalifikāciju, kuriem šāda darbu kontrole uzdota tiešajos darba
pienākumos.
41. Būves inventarizācijas
vērtības noteikšanas darbu kontroli iedala regulārajās un izlases
veida pārbaudēs.
42. Būves inventarizācijas
vērtības noteikšanas darbu kontrole tiek veikta kamerālos
darbos.
43. Kamerālos darbos regulāri
pārbauda:
43.1. vērtējamās būves
identifikācijas datus;
43.2. būves tehniskās
inventarizācijas lietā iekļautās informācijas atbilstību
inventarizācijas vērtības aprēķina protokolā izmantotajam;
43.3. būves inventarizācijas
vērtības aprēķina pareizību.
44. Kamerālos darbos izlases veidā
pārbauda:
44.1. būves inventarizācijas
vērtības noteikšanā izmantotā būvju vienību cenu krājuma un būves
vienības bāzes vērtības atbilstību vērtējamai būvei;
44.2. būves inventarizācijas
vērtības noteikšanā pielietoto korekcijas koeficientu atbilstību
konkrētajai būvei.
45. Būves inventarizācijas
vērtības noteikšanas darbu kontroles veicējam pārbaudāmajā
protokolā jāuzrāda atklātās kļūdas un neprecizitātes, kas
jānovērš konkrētajam darbu izpildītājam.
46. Būves inventarizācijas
vērtības aprēķina protokola atbilstību šīs instrukcijas prasībām
ar savu parakstu apstiprina darbu pārbaudes veicējs -
pārbaudītājs, līdz ar to VZD vārdā uzņemoties atbildību par
konkrētās būves inventarizācijas vērtības pareizību.
4. PĀREJAS
NOTEIKUMI
47. Būves inventarizācijas
vērtības noteikšanai turpmāk netiek piemēroti sekojoši korekcijas
koeficienti:
47.1. labojuma koeficients pārejai
uz citām kapitalitātes grupām;
47.2. inflācijas koeficients;
47.3. pārējie būvju vienību cenu
krājumos esošie labojuma koeficienti, kuri līdz šim tika
piemēroti būves inventarizācijas vērtības koriģēšanai.
48. VZD nodaļām, kuras būvju
pilnas tehniskās inventarizācijas veikšanā nav pārgājušas uz tās
izpildi pēc 1999. gada 30. martā ar VZD rīkojumu Nr. 96
apstiprināto "Tehniskās inventarizācijas instrukciju", pārejas
periodā būves inventarizācijas vērtību nosaka šīs instrukcijas
noteiktajā kārtībā un papildus to ieraksta arī 2. formas
veidlapā, neatkārtojot inventarizācijas vērtības aprēķina
protokolā veiktos aprēķinus.
1.pielikums
Būvju
inventarizācijas vērtību noteikšanā izmantojamo būvju vienību
cenu krājumu saraksts
|
Numurs |
Būvju vienību cenu krājuma nosaukums |
| |
2/26-I/ 26-II/ 26-IV/ 36 |
Izmaksu rādītāji lauksaimniecības un citu lauku
apvidos |
|
|
izvietoto uzņēmumu ēku un būvju atjaunošanas izmaksu |
|
|
novērtēšanai |
|
5 |
Elektrostaciju un elektrotīklu ēku un būvju
atjaunošanas |
|
|
vērtības noteikšanas kompleksie izmaksu rādītāji |
|
6 |
Ķīmiskās rūpniecības ēkas un būves |
|
7 |
Mašīnbūvniecības ēku un būvju atjaunošanas vērtības |
|
|
noteikšanas kompleksie izmaksu rādītāji |
|
8 |
Būvmateriālu rūpniecības ēku un būvju atjaunošanas |
|
|
vērtības noteikšanas kompleksie izmaksu rādītāji. |
|
9 |
Mežizstrādes, papīra, kokapstrādes un koksnes
ķīmiskās |
|
|
rūpniecības ēku un būvju atjaunošanas vērtības |
|
|
noteikšanas kompleksie izmaksu rādītāji |
|
10 |
Izmaksu rādītāji pārtikas rūpniecības ēkām un
ietaisēm |
|
|
atjaunošanas izmaksu novērtēšanai |
|
11 |
Izmaksu rādītāji gaļas un piena rūpniecības ēkām un |
|
|
ietaisēm atjaunošanas izmaksu novērtēšanai |
|
12 |
Zivju rūpniecības ēku un būvju atjaunošanas vērtības |
|
|
noteikšanas kompleksie izmaksu rādītāji |
|
13 |
Graudu noliktavu un miltu malšanas - putraimu un |
|
|
kombinētās lopbarības rūpniecības ēku un būvju |
|
|
atjaunošanas vērtības noteikšanas kompleksie izmaksu |
|
|
rādītāji |
|
14 |
Vieglās un tekstilrūpniecības ēku un būvju
atjaunošanas |
|
|
vērtības noteikšanas kompleksie izmaksu rādītāji |
|
15 |
Atjaunošanas izmaksu rādītāji poligrāfijas un kino |
|
|
rūpniecības ēkām un būvēm |
|
16 |
Kūdras rūpniecības ēku un būvju kompleksie
atjaunošanas |
|
|
izmaksu rādītāji |
|
17 |
Atjaunošanas izmaksu rādītāji medicīnas rūpniecības |
|
|
ēkām un būvēm |
|
18 |
Pamatfondu atjaunošanas vērtības noteikšanai
palielinātie |
|
|
(kompleksie) izmaksu rādītāji ēkām, kuras sastopamas |
|
|
daudzās saimniecības nozarēs |
|
18.1 |
Atjaunošanas izmaksu rādītāji ēkām un būvēm no |
|
|
saliekamām arkveida konstrukcijām, kuras sastopamas |
|
|
daudzās saimniecības nozarēs |
|
19 |
Pamatfondu atjaunošanas vērtības noteikšanas
palielinātie |
|
|
(kompleksie) izmaksu rādītāji būvēm un celtnēm,
kuras |
|
|
sastopamas daudzās saimniecības nozarēs |
|
19.1 |
Naftas produktu uzglabāšanas ēku un būvju
atjaunošanas |
|
|
vērtības noteikšanas kompleksie izmaksu rādītāji |
|
20 |
Palielinātie (kompleksie) būvniecības izmaksu
rādītāji |
|
|
jūras un upju ostu, kuģošanas un kuģu būvniecības
ēku |
|
|
un būvju atjaunošanas izmaksu novērtēšanai |
|
21 |
Dzelzceļa transporta ēku un būvju atjaunošanas
vērtības |
|
|
noteikšanas kompleksie izmaksu rādītāji |
|
23/27 |
Ārējo inženiertīklu, autoceļu, brauktuvju, ietvju,
joslu, |
|
|
autotransporta ēku un būvju atjaunošanas vērtības |
|
|
noteikšanas kompleksie izmaksu rādītāji |
|
23/27.1 |
Apzaļumojumu un teritoriju labiekārtojumu kompleksie |
|
|
atjaunošanas vērtības izmaksu rādītāji |
|
24 |
Civilās aviācijas lidostu ēku un būvju atjaunošanas |
|
|
vērtības noteikšanas kompleksie izmaksu rādītāji |
|
25 |
Palielinātie (kompleksie) būvniecības izmaksu
rādītāji |
|
|
sakaru ēku un būvju atjaunošanas izmaksu
novērtēšanai |
|
26-II/5/31 |
Veselības aizsardzības ēku un būvju atjaunošanas
vērtības |
|
|
noteikšanas kompleksie izmaksu rādītāji |
|
27 |
Ūdensapgādes un kanalizācijas būvju (bez ārējiem |
|
|
inženiertīkliem) atjaunošanas vērtības noteikšanas |
|
|
kompleksie izmaksu rādītāji |
|
28 |
Dzīvojamo, sabiedrisko, komunālo sadzīves
pakalpojumu |
|
|
ēku un būvju atjaunošanas vērtības noteikšanas |
|
|
kompleksie izmaksu rādītāji |
|
28.1 |
Dzīvojamo, sabiedrisko un sadzīves pakalpojumu ēku
un |
|
|
būvju atjaunošanas vērtības noteikšanas kompleksie |
|
|
izmaksu rādītāji |
|
28.2 |
Līvānu EMBK ražoto dzīvojamo māju atjaunošanas |
|
|
vērtības noteikšanas kompleksie izmaksu rādītāji |
|
28.3 |
Dārza mājiņu un individuālo saimniecības ēku
atjaunošanas |
|
|
vērtības noteikšanas kompleksie izmaksu rādītāji |
|
28.4 |
Zinātniski pētniecisko institūtu un laboratoriju ēku
un |
|
|
būvju atjaunošanas vērtības noteikšanas kompleksie |
|
|
izmaksu rādītāji |
|
28.5 |
Daudzdzīvokļu dzīvojamās mājas un to bloksekcijas,
kuru |
|
|
būvniecībai 1958.-1984. gados bija apstiprināti
būvdarbu |
|
|
cenrāži |
|
28.6 |
Individuālo vienģimeņu māju atjaunošanas vērtības |
|
|
noteikšanas kompleksie izmaksu rādītāji, kuras celtas
pēc |
|
|
tipa projektiem 1983.-1990. gados |
|
30 |
Palielinātie kompleksie izmaksu rādītāji pilsētas
elektriskā |
|
|
transporta ēku un būvju atjaunošanas izmaksu
novērtēšanai |
|
32.1 |
Augstskolu un vidējo speciālo mācību iestāžu ēku un |
|
|
būvju atjaunošanas vērtības noteikšanas kompleksie |
|
|
izmaksu rādītāji |
|
32.2 |
Vispārizglītojošo skolas ēku un būvju atjaunošanas |
|
|
vērtības noteikšanas kompleksie izmaksu rādītāji |
|
32.3 |
Ārpusskolas un pirmskolas vecuma bērnu iestāžu ēku
un |
|
|
būvju atjaunošanas vērtības noteikšanas kompleksie |
|
|
izmaksu rādītāji |
|
33 |
Tirdzniecības uzņēmumu ēku un būvju atjaunošanas |
|
|
vērtības noteikšanas kompleksie izmaksu rādītāji |
|
34 |
Teātru, kinoteātru, klubu un kultūras namu un citu
izrāžu |
|
|
tipa ēku un būvju atjaunošanas vērtības noteikšanas |
|
|
kompleksie izmaksu rādītāji |
|
34.1 |
Pilsētu un lauku klubu, kultūras namu un bibliotēkas
ēku |
|
|
un būvju atjaunošanas vērtības noteikšanas
kompleksie |
|
|
izmaksu rādītāji |
|
34.2 |
Sporta ēku un būvju atjaunošanas vērtības
noteikšanas |
|
|
kompleksie izmaksu rādītāji |
|
37 |
Ūdenssaimniecības (apūdeņošanas un nosusināšanas |
|
|
sistēmu) ēku un būvju kompleksie atjaunošanas
izmaksu |
|
|
rādītāji |
| |
Piezīme: Augstāk uzskaitītie
būvju vienību cenu krājumi pieejami LR VZD Nekustamā īpašuma
vērtēšanas centra Informācijas daļā - gan izdruku, gan digitālā
formā.
2. pielikums
Ģeogrāfiskās novietnes
koeficients - K g
| Nr. |
Pilsēta / lauku |
Koeficients |
Nr. |
Pilsēta / lauku |
Koeficients |
| p. k. |
apdzīvota vieta |
Kg |
p. k. |
apdzīvota vieta |
Kg |
| 1 |
Ainaži |
0.25 |
44 |
Lubāna |
0.20 |
| 2 |
Aizkraukle |
0.40 |
45 |
Ludza |
0.30 |
| 3 |
Aizpute |
0.30 |
46 |
Madona |
0.35 |
| 4 |
Aknīste |
0.20 |
47 |
Mazsalaca |
0.25 |
| 5 |
Aloja |
0.25 |
48 |
Nereta |
0.20 |
| 6 |
Alsunga |
0.30 |
49 |
Ogre |
0.60 |
| 7 |
Alūksne |
0.25 |
50 |
Olaine |
0.45 |
| 8 |
Ape |
0.20 |
51 |
Pāvilosta |
0.30 |
| 9 |
Auce |
0.20 |
52 |
Piltene |
0.35 |
| 10 |
Baldone |
0.40 |
53 |
Pļaviņas |
0.30 |
| 11 |
Baloži |
0.50 |
54 |
Preiļi |
0.30 |
| 12 |
Balvi |
0.25 |
55 |
Priekule |
0.30 |
| 13 |
Bauska |
0.40 |
56 |
Rēzekne |
0.50 |
| 14 |
Brocēni |
0.30 |
57 |
Rīga |
1.00 |
| 15 |
Cēsis |
0.55 |
58 |
Rūjiena |
0.30 |
| 16 |
Cesvaine |
0.30 |
59 |
Sabile |
0.35 |
| 17 |
Dagda |
0.25 |
60 |
Salacgrīva |
0.40 |
| 18 |
Daugavpils |
0.55 |
61 |
Salaspils |
0.70 |
| 19 |
Dobele |
0.45 |
62 |
Saldus |
0.40 |
| 20 |
Dundaga |
0.25 |
63 |
Saulkrasti |
0.75 |
| 21 |
Durbe |
0.25 |
64 |
Seda |
0.25 |
| 22 |
Ērgļi |
0.35 |
65 |
Sigulda |
0.75 |
| 23 |
Gaujiena |
0.25 |
66 |
Skaistkalne |
0.20 |
| 24 |
Grobiņa |
0.35 |
67 |
Skrunda |
0.40 |
| 25 |
Gulbene |
0.35 |
68 |
Smiltene |
0.40 |
| 26 |
Iecava |
0.40 |
69 |
Staicele |
0.25 |
| 27 |
Ikšķile |
0.60 |
70 |
Stende |
0.35 |
| 28 |
Ilūkste |
0.30 |
71 |
Strenči |
0.25 |
| 29 |
Jaunjelgava |
0.25 |
72 |
Subate |
0.25 |
| 30 |
Jēkabpils |
0.40 |
73 |
Talsi |
0.40 |
| 31 |
Jelgava |
0.75 |
74 |
Tukums |
0.60 |
| 32 |
Jūrmala |
0.65 |
75 |
Vaiņode |
0.25 |
| 33 |
Kalnciems |
0.35 |
76 |
Valdemārpils |
0.30 |
| 34 |
Kandava |
0.40 |
77 |
Valka |
0.40 |
| 35 |
Kārsava |
0.20 |
78 |
Valmiera |
0.50 |
| 36 |
Krāslava |
0.30 |
79 |
Vangaži |
0.60 |
| 37 |
Kuldīga |
0.45 |
80 |
Varakļāni |
0.25 |
| 38 |
Ķegums |
0.50 |
81 |
Vecumnieki |
0.35 |
| 39 |
Lielvārde |
0.50 |
82 |
Ventspils |
0.80 |
| 40 |
Liepāja |
0.60 |
83 |
Viesīte |
0.25 |
| 41 |
Līgatne |
0.40 |
84 |
Viļaka |
0.20 |
| 42 |
Limbaži |
0.40 |
85 |
Viļāni |
0.25 |
| 43 |
Līvāni |
0.25 |
86 |
Zilupe |
0.20 |
Paskaidrojums: Ģeogrāfiskās novietnes koeficients
Kg - korekcijas koeficients būves inventarizācijas
vērtības noteikšanai, ievērojot būves ģeogrāfisko novietojumu
pret Rīgas pilsētu.
3. pielikums
Būvju izmantošanas veida
korekcijas koeficients - K iv
Būvju klasifikācijas
1998.g. kods |
Būvju klases nosaukums pēc
1998.g. klasifikācijas |
Būvju tipu
grupa Kiv |
| Nr. |
Nosaukums |
| 1 |
2 |
3 |
4 |
5 |
|
1 ĒKAS
11 Dzīvojamās mājas
110 Dzīvojamo namu
palīgēkas
|
| 1101 |
Dzīvojamo māju |
01 |
Saimniecības ēkas |
0.56 |
|
palīgēkas |
02 |
Individuālās garāžas |
0.56 |
|
|
03 |
Šķūņi |
0.56 |
|
|
04 |
Siltumnīcas |
0.56 |
|
|
05 |
Pagrabi |
0.56 |
|
|
06 |
Kūtis |
0.56 |
|
|
07 |
Nojumes |
0.56 |
| 111 Viena dzīvokļa
mājas |
| 1110 |
Viena dzīvokļa |
01 |
Rindu un dvīņu mājas, kurās katram |
0.56 |
|
mājas |
|
dzīvoklim ir savs jumts, sava atsevišķa
ieeja |
|
|
02 |
Līvānu eksperimentālās māju |
0.56 |
|
|
|
būvniecības kombināta individuālās mājas |
|
|
03 |
Pārējo tipu individuālās mājas |
0.56 |
|
|
04 |
Vasarnīcas |
0.56 |
|
|
05 |
Dārza mājiņas |
0.56 |
| 112 Divu vai
vairāku dzīvokļu mājas |
| 1121 |
Divu dzīvokļu mājas |
01 |
Rindu un dvīņu mājas, kurās ir divi
dzīvokļi |
0.56 |
|
|
02 |
Brīvi stāvošas divu dzīvokļu mājas |
0.56 |
| 1122 |
Triju un vairāku |
01 |
Daudzdzīvokļu mājas |
0.49 |
|
dzīvokļu mājas |
| 113 Dažādu sociālo
grupu kopdzīvojamās mājas |
| 1130 |
Dažādu sociālo grupu |
01 |
Kopmītnes un studentu mītnes |
0.49 |
|
kopdzīvojamās mājas |
02 |
Bāriņu nami |
0.49 |
|
|
03 |
Atsevišķi nodalītas internātskolu mītnes |
0.49 |
|
|
04 |
Garīgi atpalikušo bērnu audzināšanas |
0.49 |
|
|
|
un apkalpošanas nami |
|
|
05 |
Veco ļaužu pansionāti |
0.49 |
|
|
06 |
Bezpajumtnieku patversmes |
0.49 |
|
|
07 |
Citas sociālo grupu kopdzīvojamās ēkas |
0.49 |
| 12 Nedzīvojamās
ēkas |
| 120 Nedzīvojamo ēku palīgēkas |
| 1201 |
Nedzīvojamo māju |
01 |
Saimniecības ēkas |
0.42 |
|
palīgēkas |
02 |
Individuālās garāžas |
0.42 |
|
|
03 |
Šķūņi |
0.42 |
|
|
04 |
Siltumnīcas |
0.42 |
|
|
05 |
Pagrabi |
0.42 |
|
|
06 |
Kūtis |
0.42 |
|
|
07 |
Nojumes |
0.42 |
| 121 Viesnīcas un
tām līdzīga lietojuma ēkas |
| 1211 |
Viesnīcu ēkas |
01 |
Viesnīcu ēkas |
0.84 |
|
|
02 |
Moteļi, kempingi |
0.84 |
|
|
03 |
Atpūtas nami, pansionāti un līdzīgas |
0.84 |
|
|
|
īslaicīgas apmešanas vietas |
|
|
04 |
Atsevišķi restorāni |
0.84 |
|
|
05 |
Atsevišķas ēdnīcas |
0.84 |
|
|
06 |
Atsevišķas kafeinīcas |
0.84 |
|
|
07 |
Atsevišķas bufetes un bāri |
0.84 |
|
|
08 |
Citas atsevišķas sabiedriskās |
0.84 |
|
|
|
ēdināšanas ēkas |
|
| 1212 |
Citas īslaicīgas |
01 |
Citur neklasificētas izīrējamas ēkas |
0.49 |
|
apmešanās ēkas |
|
atpūtai un brīvdienu pavadīšanai |
|
|
|
(jauniešu kopmītnes, tūristu apmetnes, |
|
|
|
bērnu vai ģimeņu brīvdienu apmetnes, |
|
|
|
brīvdienu bungalo u.c.) |
| 122 Biroju
ēkas |
| 1220 |
Biroju ēkas |
01 |
Konferenču zāles |
0.84 |
|
|
02 |
Apbedīšanas un ceremoniju biroji |
0.84 |
|
|
03 |
Valdības iestāžu administratīvās ēkas |
0.84 |
|
|
04 |
Uzņēmumu un organizāciju |
0.84 |
|
|
|
administratīvās ēkas, kantori, biroji |
|
|
05 |
Kolektīvās lietošanas biroju ēkas |
0.84 |
|
|
06 |
Bankas |
0.84 |
|
|
07 |
Tiesas |
0.84 |
|
|
08 |
Konstruktoru un projektēšanas |
0.84 |
|
|
|
iestādes, skaitļošanas centri |
|
|
09 |
Muitas |
0.84 |
|
|
10 |
Citas administratīvās ēkas |
0.84 |
| 123
Vairumtirdzniecības un mazumtirdzniecības ēkas |
| 1230 |
Vairumtirdzniecības |
01 |
Tirdzniecības centri un universālveikali |
0.84 |
|
un mazumtirdzniecības |
02 |
Atsevišķi veikali |
0.84 |
|
ēkas |
03 |
Tirgus ēkas un tirgus paviljoni |
0.84 |
|
|
04 |
Kioski un pārējie tirdzniecības
paviljoni |
0.84 |
|
|
05 |
Citas tirdzniecības ēkas |
0.84 |
|
|
06 |
Ateljē ēkas, kurās galvenokārt tiek |
0.84 |
|
|
|
veikts individuālās lietošanas |
|
|
|
priekšmetu, sadzīves aparatūras un |
|
|
|
iekārtu remonts |
|
|
07 |
Sadzīves pakalpojumu kombinātu ēkas, |
0.84 |
|
|
|
kurās galvenokārt tiek veikts |
|
|
|
individuālās lietošanas priekšmetu, |
|
|
|
sadzīves aparatūras un iekārtu remonts |
|
|
08 |
Sadzīves pakalpojumu darbnīcu ēkas, |
0.84 |
|
|
|
kurās galvenokārt tiek veikts |
|
|
|
individuālo lietošanas priekšmetu, |
|
|
|
sadzīves aparatūras un iekārtu remonts |
|
|
09 |
Lombardi |
0.84 |
|
|
10 |
Aptiekas |
0.84 |
|
|
11 |
Tirdzniecības bāzes un noliktavas |
0.84 |
|
|
12 |
Automobiļu un motociklu, ieskaitot |
0.84 |
|
|
|
kravas automobiļus, tehniskās apkopes, |
|
|
|
remonta rūpnīcu un darbnīcu ēkas |
|
|
13 |
Degvielas uzpildes stacijas |
0.84 |
| 124 Satiksmes un sakaru ēkas |
| 1241 |
Sakaru ēkas, stacijas, |
01 |
Autostaciju pasažieru un kravu |
0.49 |
|
termināļi un ar tām |
|
pārvadājumu apkalpošanas ēkas un |
|
saistītās ēkas |
|
pieturvietu auto paviljoni |
|
|
02 |
Lidostu pasažieru un kravu |
0.49 |
|
|
|
pārvadājumu apkalpošanas ēkas |
|
|
03 |
Lidmašīnu tehniskās apkopes un |
0.49 |
|
|
|
lidojuma nodrošināšanas ēkas |
|
|
04 |
Dzelzceļa staciju, dežūru un |
0.49 |
|
|
|
signalizācijas dienesta ēkas |
|
|
05 |
Dzelzceļa depo, ekipēšanas, tehniskās |
0.49 |
|
|
|
apskates un citas ražošanas-tehniskās
ēkas |
|
|
06 |
Citas transporta ēkas |
0.49 |
|
|
07 |
Pasta un sakaru nodaļu ēkas |
0.49 |
|
|
08 |
Telefona un telegrāfa centrāļu un |
0.49 |
|
|
|
pastiprināšanas punktu ēkas |
|
|
09 |
Radiopārraides-uztveršanas staciju un |
0.49 |
|
|
|
televīzijas centru-studiju tehniskās
ēkas |
|
|
10 |
Citas pasta, sakaru, radio un televīzijas
ēkas |
0.49 |
|
|
11 |
Bākas |
0.49 |
| 1242 |
Garāžu ēkas |
01 |
Virszemes un apakšzemes garāžas, |
0.49 |
|
|
|
apjumtas automobiļu novietnes un |
|
|
|
velosipēdu nojumes |
| 125 Rūpnieciskās
ražošanas ēkas un noliktavas |
| 1251 |
Rūpnieciskās |
01 |
Kūdras ieguves un apstrādes ēkas |
0.42 |
|
ražošanas ēkas |
02 |
Gaļas un gaļas produktu ražošanas |
0.42 |
|
|
|
un pārstrādes ēkas |
|
|
03 |
Piena un piena produktu ražošanas |
0.42 |
|
|
|
un pārstrādes ēkas |
|
|
04 |
Zivju un zivju produktu ražošanas |
0.42 |
|
|
|
un pārstrādes ēkas |
|
|
05 |
Sviesta-tauku izstrādājumu un |
0.42 |
|
|
|
parfimērijas ražošanas ēkas |
|
|
06 |
Cukura ražošanas ēkas |
0.42 |
|
|
07 |
Maizes, makaronu, konditorejas |
0.42 |
|
|
|
izstrādājumu un konservu ražošanas |
|
|
|
un augļu pārstrādes ēkas |
|
|
08 |
Rauga un cietes ražošanas ēkas |
0.42 |
|
|
09 |
Dzērienu un tabakas izstrādājumu |
0.42 |
|
|
|
ražošanas ēkas |
|
|
10 |
Kulinārijas uzņēmumu ražošanas ēkas |
0.42 |
|
|
11 |
Graudu pārstrādes ēkas |
0.42 |
|
|
12 |
Kombinētās lopbarības ražošanas ēkas |
0.42 |
|
|
13 |
Tekstilizstrādājumu ražošanas ēkas |
0.42 |
|
|
14 |
Šūšanas un trikotāžas izstrādājumu |
0.42 |
|
|
|
ražošanas ēkas |
|
|
15 |
Ādu apstrādes, apavu un kažokādu |
0.42 |
|
|
|
izstrādājumu ražošanas ēkas |
|
|
16 |
Tūbu, mākslīgo ādu, zoļu, lietusmēteļu |
0.42 |
|
|
|
audumu un plēvju ražošanas ēkas |
|
|
17 |
Kokmateriālu sagatavošanas un |
0.42 |
|
|
|
kokapstrādes ēkas |
|
|
18 |
Celulozes un papīra ražošanas ēkas |
0.42 |
|
|
19 |
Poligrāfijas un kinofilmu uzņemšanas |
0.42 |
|
|
|
uzņēmumu ražošanas ēkas |
|
|
20 |
Farmaceitisko un medicīnisko |
0.42 |
|
|
|
pamatvielu un preparātu ražošanas ēkas |
|
|
21 |
Medicīnas stiklu ražošanas ēkas |
0.42 |
|
|
22 |
Plastmasas, mākslīgās šķiedras un |
0.42 |
|
|
|
polimēru izstrādājumu ražošanas ēkas |
|
|
23 |
Citas, iepriekš neklasificētas, ķīmiskās |
0.42 |
|
|
|
rūpniecības produkcijas ražošanas ēkas |
|
|
24 |
Dzelzsbetona izstrādājumu ražošanas ēkas |
0.42 |
|
|
25 |
Keramikas izstrādājumu ražošanas ēkas |
0.42 |
|
|
26 |
Ģipša ražošanas ēkas |
0.42 |
|
|
27 |
Mīksto jumta segumu rūpnīcas |
0.42 |
|
|
28 |
Cementa ražošanas ēkas |
0.42 |
|
|
29 |
Šķembu, grants un smilts ražošanas |
0.42 |
|
|
|
un apstrādes ēkas |
|
|
30 |
Sanitārtehnisko iekārtu ražošanas ēkas |
0.42 |
|
|
31 |
Asfalta ražošanas ēkas |
0.42 |
|
|
32 |
Stikla ražošanas ēkas |
0.42 |
|
|
33 |
Kaļķu ražošanas ēkas |
0.42 |
|
|
34 |
Silikāta ķieģeļu ražošanas ēkas |
0.42 |
|
|
35 |
Sarkano ķieģeļu ražošanas ēkas |
0.42 |
|
|
36 |
Gatavo metāla izstrādājumu, mašīnu, |
0.42 |
|
|
|
aparātu, iekārtu un instrumentu |
|
|
|
ražošanas ēkas |
|
|
37 |
Metāla izstrādājumu remonta cehu |
0.42 |
|
|
|
un darbnīcu ēkas, izņemot |
|
|
|
lauksaimniecības mašīnu un tehnikas |
|
|
|
remontu rūpnīcu un remontmehānisko |
|
|
|
darbnīcu ēkas |
|
|
38 |
Lauksaimniecības mašīnu un tehnikas |
0.42 |
|
|
|
remonta rūpnīcu un remontmehānisko |
|
|
|
darbnīcu ēkas |
|
|
39 |
Ateljē ēkas, kurās galvenokārt tiek |
0.42 |
|
|
|
veikti dažādu lietošanas priekšmetu, |
|
|
|
aparatūras un iekārtu ražošana un |
|
|
|
remonts, izņemot individuālās |
|
|
|
lietošanas minēto priekšmetu remontu |
|
|
40 |
Sadzīves pakalpojumu kombinātu ēkas, |
0.42 |
|
|
|
kurās galvenokārt tiek veikti |
|
|
|
lietošanas priekšmetu, sadzīves |
|
|
|
aparatūras un iekārtu ražošana un |
|
|
|
remonts, izņemot individuālās |
|
|
|
lietošanas minēto priekšmetu remontu |
|
|
41 |
Sadzīves pakalpojumu darbnīcu ēkas, |
0.42 |
|
|
|
kurās galvenokārt tiek veikti dažādu |
|
|
|
lietošanas priekšmetu, sadzīves |
|
|
|
aparatūras un iekārtu ražošana un |
|
|
|
remonts, izņemot individuālās |
|
|
|
lietošanas minēto priekšmetu remontu |
|
|
|
42 |
Katlu mājas |
0.42 |
|
|
43 |
Elektroenerģijas apgādes ēkas, |
0.42 |
|
|
|
izņemot hidroelektrostacijas, |
|
|
|
termoelektrostacijas un |
|
|
|
transformatoru stacijas |
|
|
44 |
Transformatoru staciju un apakšstaciju |
0.42 |
|
|
|
ēkas, izņemot maģistrālo |
|
|
|
elektropārvades līniju transformatoru |
|
|
|
staciju un apakšstaciju ēkas |
| 1252 |
Rezervuāri, bunkuri, |
01 |
Būvmateriālu un stikla ražošanas |
0.42 |
|
silosi un noliktavas |
|
uzņēmumu noliktavas |
|
|
02 |
Kokmateriālu sagatavošanas, koka |
0.42 |
|
|
|
izstrādājumu, celulozes, papīra un |
|
|
|
koksnes ķīmisko izstrādājumu ražošanas |
|
|
|
uzņēmumu noliktavas un nojumes |
|
|
03 |
Cukura, sviesta-tauku un |
0.42 |
|
|
|
parfimērijas izstrādājumu ražošanas |
|
|
|
uzņēmumu noliktavas |
|
|
04 |
Siera ražošanas uzņēmumu noliktavas |
0.42 |
|
|
05 |
Tekstilizstrādājumu ražošanas |
0.42 |
|
|
|
uzņēmumu noliktavas |
|
|
06 |
Zivjaudzētavu un zivju pārstrādes |
0.42 |
|
|
|
uzņēmumu noliktavas un nojumes |
|
|
07 |
Elevatoru, graudu pārstrādes un |
0.42 |
|
|
|
kombinētās lopbarības ražošanas |
|
|
|
uzņēmumu noliktavas |
|
|
08 |
Kinofilmu uzņemšanas uzņēmumu |
0.42 |
|
|
|
noliktavas |
|
|
09 |
Kūdras izstrādājumu ražošanas |
0.42 |
|
|
|
uzņēmumu noliktavas |
|
|
10 |
Farmaceitisko un medicīnisko preparātu |
0.42 |
|
|
|
ražošanas uzņēmumu noliktavas |
|
|
11 |
Dažādu ekonomiskās darbības |
0.42 |
|
|
|
uzņēmumu un lauku saimniecību |
|
|
|
arkveida noliktavas, kuras netiek |
|
|
|
izmantotas lauksaimnieciskajā ražošanā |
|
|
12 |
Ūdens transporta un ostu uzņēmumu |
0.42 |
|
|
|
noliktavas |
|
|
13 |
Dzelzceļa transporta uzņēmumu |
0.42 |
|
|
|
noliktavas un nojumes |
|
|
14 |
Gaisa transporta uzņēmumu (lidostu) |
0.42 |
|
|
|
noliktavas |
|
|
15 |
Telefonu sakaru uzņēmumu noliktavas |
0.42 |
|
|
|
un nojumes |
|
|
16 |
Ārējās ūdensapgādes uzņēmumu |
0.42 |
|
|
|
noliktavas |
|
|
|
17 |
Komunālo un individuālo sadzīves |
0.42 |
|
|
|
pakalpojumu uzņēmumu noliktavas |
|
|
18 |
Sašķidrinātās gāzes apgādes |
0.42 |
|
|
|
uzņēmumu noliktavas |
|
|
19 |
Zinātniskās pētniecības iestāžu
noliktavas |
0.42 |
|
|
20 |
Vidēji speciālās un augstākās |
0.42 |
|
|
|
izglītības iestāžu noliktavas |
|
|
21 |
Citu, iepriekš neminētu uzņēmumu |
0.42 |
|
|
|
noliktavas un lauku saimniecību |
|
|
|
noliktavas, kuras netiek izmantotas |
|
|
|
lauksaimniecības produkcijas glabāšanai |
|
|
22 |
Lauku saimniecību naftas produktu |
0.42 |
|
|
|
un amonjaka ūdens rezervuāri |
|
|
23 |
Elektrostaciju tvertnes kurināmajam |
0.42 |
|
|
24 |
Asfalta ražošanas uzņēmumu bituma |
0.42 |
|
|
|
un darvas glabātavas |
|
|
25 |
Zivju audzētavu tvertnes un baseini |
0.42 |
|
|
|
zivju uzglabāšanai un mazuļu audzēšanai |
|
|
26 |
Tvaika un karstā ūdens katlu māju |
0.42 |
|
|
|
mazuta saimniecības rezervuāri ar sūkņu |
|
|
|
stacijām un degvielas padeves galerijām |
|
|
27 |
Dažādu ekonomiskās darbības |
0.42 |
|
|
|
uzņēmumu naftas produktu metāla |
|
|
|
vertikālie rezervuāri |
|
|
28 |
Dzelzceļa transporta uzņēmumu naftas |
0.42 |
|
|
|
produktu un ķīmikāliju rezervuāri |
|
|
29 |
Gaisa transporta uzņēmumu (lidostu) |
0.42 |
|
|
|
naftas produktu rezervuāri |
|
|
30 |
Sakaru uzņēmumu naftas produktu |
0.42 |
|
|
|
rezervuāri |
|
|
31 |
Sašķidrinātās gāzes apgādes |
0.42 |
|
|
|
uzņēmumu rezervuāri |
|
|
32 |
Būvmateriālu ražošanas uzņēmumu |
0.42 |
|
|
|
bunkuri un silosi |
|
|
33 |
Kokmateriālu sagatavošanas, koka |
0.42 |
|
|
|
izstrādājumu, celulozes, papīra un |
|
|
|
koksnes ķīmisko izstrādājumu |
|
|
|
ražošanas uzņēmumu bunkuri un silosi |
|
|
34 |
Cukura ražošanas uzņēmumu silosi |
0.42 |
|
|
35 |
Elevatoru, graudu pārstrādes un |
0.42 |
|
|
|
kombinētās lopbarības ražošanas |
|
|
|
uzņēmumu bunkuri un silosi |
|
|
36 |
Kūdras izstrādājumu ražošanas |
0.42 |
|
|
|
uzņēmumu tvertnes |
|
|
37 |
Citu, iepriekš neminētu, uzņēmumu |
0.42 |
|
|
|
bunkuri (tvertnes), un lauku |
|
|
|
saimniecību bunkuri (tvertnes), |
|
|
|
kuri netiek izmantoti |
|
|
|
lauksaimnieciskajā ražošanā |
|
|
38 |
Sviesta-tauku izstrādājumu |
0.42 |
|
|
|
ražošanas uzņēmumu saldētavas |
|
|
39 |
Gaļas un gaļas produktu ražošanas |
0.42 |
|
|
|
un pārstrādes uzņēmumu saldētavas |
|
|
40 |
Zivju pārstrādes uzņēmumu saldētavas |
0.42 |
|
|
41 |
Tirdzniecības uzņēmumu saldētavas |
0.42 |
|
|
42 |
Farmaceitisko un medicīnisko preparātu |
0.42 |
|
|
|
ražošanas uzņēmumu saldētavas |
|
|
43 |
Gāzes sadales un regulēšanas punktu ēkas |
0.42 |
|
|
44 |
Gāzes apgādes dienesta - |
0.42 |
|
|
|
ekspluatācijas, remontu - |
|
|
|
ekspluatācijas u.c. ēkas |
|
|
45 |
Elektrostaciju rezervuāri ūdenim |
0.42 |
|
|
46 |
Kokmateriālu sagatavošanas, koka |
0.42 |
|
|
|
izstrādājumu, celulozes, papīra un |
|
|
|
koksnes ķīmisko izstrādājumu |
|
|
|
ražošanas uzņēmumu rezervuāri ūdenim |
|
|
47 |
Dzelzceļa transporta uzņēmumu |
0.42 |
|
|
|
rezervuāri ūdenim |
|
|
48 |
Ūdens apgādes uzņēmumu rezervuāri |
0.42 |
|
|
|
ūdenim |
|
|
49 |
Apūdeņošanas un nosusināšanas |
0.42 |
|
|
|
sistēmu ūdens rezervuāri |
| 126 Plašizklaides
pasākumu, izglītības vai veselības aprūpes ēkas |
| 1261 |
Plašizklaides |
01 |
Teātri un operas |
0.49 |
|
pasākumu ēkas |
02 |
Kinoteātri |
0.49 |
|
|
03 |
Koncertzāles |
0.49 |
|
|
04 |
Klubi un tautas nami |
0.49 |
|
|
05 |
Kazino, cirki, mūzikas un deju zāles |
0.49 |
|
|
|
un diskotēkas, apjumtas brīvdabas
estrādes |
|
|
06 |
Sarīkojumu un universālās zāles, kas |
0.49 |
|
|
|
pārsvarā tiek izmantotas plašizklaides |
|
|
|
pasākumiem, un citas plašizklaides |
|
|
|
pasākumu ēkas |
|
| 1262 |
Muzeji un |
01 |
Bibliotēkas un arhīvu ēkas |
0.49 |
|
bibliotēkas |
02 |
Muzeji un mākslas galerijas |
0.49 |
|
|
03 |
Izstāžu zāles un paviljoni |
0.49 |
|
|
04 |
Reliģiskās ēkas, kuras izmanto kā
muzejus |
0.49 |
| 1263 |
Skolas, universitātes |
01 |
Bērnu dārzi un silītes |
0.49 |
|
un zinātniskās |
02 |
Bērnu vasaras nometnes un pirmskolas |
0.49 |
|
pētniecības ēkas |
|
vecuma bērnu izbraukuma vasarnīcas |
|
|
03 |
Bērnu nami un pilis |
0.49 |
|
|
04 |
Vispārizglītojošo un internātskolu |
0.49 |
|
|
|
mācību korpusi |
|
|
05 |
Vidējās speciālās izglītības mācību |
0.49 |
|
|
|
iestāžu ēkas |
|
|
06 |
Augstākās izglītības mācību iestāžu ēkas |
0.49 |
|
|
07 |
Mācību iestāžu un zinātnisko |
0.49 |
|
|
|
pētniecības institūtu laboratoriju
korpusi |
|
|
08 |
Mācību iestāžu darbnīcas un citas |
0.49 |
|
|
|
palīgēkas |
|
|
|
09 |
Zinātnisko pētniecības institūtu |
0.49 |
|
|
|
speciālās nozīmes korpusi |
|
|
10 |
Meteoroloģiskās stacijas un
observatorijas |
0.49 |
|
|
11 |
Citas izglītības un zinātnes iestāžu
ēkas |
0.49 |
| 1264 |
Ārstniecības vai |
01 |
Slimnīcas, specializēta tipa |
0.49 |
|
veselības aprūpes |
|
ārstniecības un profilakses iestāžu ēkas |
|
iestāžu ēkas |
02 |
Poliklīnikas, ambulances un |
0.49 |
|
|
|
medicīnas punkti |
|
|
03 |
Dispanseri |
0.49 |
|
|
04 |
Sanatorijas, profilaktoriji un
dziedinātavas |
0.49 |
|
|
05 |
Diagnostikas centri |
0.49 |
|
|
06 |
Veterinārās iestādes |
0.49 |
|
|
07 |
Dzemdību nami, mātes un bērna |
0.49 |
|
|
|
veselības centri |
|
|
08 |
Veco ļaužu, invalīdu u.c. pastāvīgas |
0.49 |
|
|
|
īslaicīgas izmitināšanas un |
|
|
|
medicīniskās aprūpes un kopšanas ēkas |
| 1265 |
Sporta ēkas |
01 |
Mācību iestāžu atsevišķi izvietoto |
0.49 |
|
|
|
sporta zāļu un baseinu ēkas |
|
|
02 |
Sporta kompleksu ēkas |
0.49 |
|
|
03 |
Sporta bāzes |
0.49 |
|
|
04 |
Sporta zāles |
0.49 |
|
|
05 |
Baseini u.c. specializētas sporta ēkas |
0.49 |
|
|
06 |
Manēžu un šautuvju ēkas |
0.49 |
|
|
07 |
Citas sporta un veselības ēkas |
0.49 |
| 127 Citas
nedzīvojamās ēkas |
| 1271 |
Lauku saimniecību |
01 |
Lauku saimniecību lauksaimnieciskās |
0.42 |
|
nedzīvojamās ēkas |
|
ražošanas produkcijas noliktavas |
|
|
02 |
Lauku saimniecību lauksaimnieciskās |
0.42 |
|
|
|
ražošanas produkcijas arkveida |
|
|
|
noliktavas un glabātavas |
|
|
03 |
Lauksaimniecības nozares uzņēmumu |
0.42 |
|
|
|
saldētavas |
|
|
04 |
Lauku saimniecību, mēslojuma, |
0.42 |
|
|
|
skābbarības, rupjās lopbarības, |
|
|
|
graudu, kartupeļu, sakņu u.c. |
|
|
|
lauksaimnieciskās ražošanas glabātavas |
|
|
05 |
Lopkopības un putnkopības fermas |
0.42 |
|
|
|
un kompleksi |
|
|
06 |
Kūtis un staļļi |
0.42 |
|
|
07 |
Putnu fabriku ēkas |
0.42 |
|
|
08 |
Citas lopkopības un putnkopības |
0.42 |
|
|
|
ēkas, barības sagatavošanas, piena |
|
|
|
pārstrādas u.c. ēkas, izņemot grupu 03 |
|
|
09 |
Kažokādu zvēru un trušu audzēšanas ēkas |
0.42 |
|
|
10 |
Siltumnīcas un lecektis |
0.42 |
|
|
11 |
Graudu un sēklu attīrīšanas un |
0.42 |
|
|
|
žāvēšanas ēkas |
|
|
12 |
Zālāju, dārzeņu un augļu |
0.42 |
|
|
|
pirmapstrādes ēkas |
|
|
|
13 |
Citas lauksaimniecības produkcijas |
0.42 |
|
|
|
ražošanas un pirmapstrādes ēkas |
|
|
14 |
Saimniecības ēkas zemnieku sētas |
0.42 |
|
|
|
kontūru robežu plāna ietvaros |
|
|
15 |
Meža un medību saimniecību ēkas |
0.42 |
|
|
16 |
Lauksaimniecības mašīnu un tehnikas |
0.42 |
|
|
|
garāžas, šķūņi un nojumes |
|
|
17 |
Citas lauku saimniecību |
0.42 |
|
|
|
nedzīvojamās ēkas |
| 1272 |
Kulta ēkas |
01 |
Baznīcas |
0.49 |
|
|
02 |
Lūgšanas nami, draudzes nami un kapličas |
0.49 |
|
|
03 |
Krematorijas un citas kapsētu ēkas |
0.49 |
| 1273 |
Vēsturiskie un |
01 |
Reliģiskās ēkas, kas noteiktā kārtībā |
0.49 |
|
aizsargājamie |
|
atzītas par vēsturiskiem vai |
|
pieminekļi |
|
aizsargājamiem pieminekļiem |
|
|
02 |
Jebkura veida vēsturiskās vai |
0.49 |
|
|
|
aizsargājamās ēkas (izņemot reliģiskās |
|
|
|
ēkas), kuras neizmanto citiem mērķiem |
|
|
03 |
Aizsargājamās drupas, arheoloģiskie |
0.49 |
|
|
|
izrakumi un vēsturiskās apmetnes, |
|
|
|
statujas, memoriāli un mākslinieciskās |
|
|
|
vai dekoratīvās būves |
| 1274 |
Citas, iepriekš |
01 |
Pirtis |
0.49 |
|
neklasificētas ēkas |
02 |
Veļas mazgātavas |
0.49 |
|
|
03 |
Sadzīves pakalpojumu kompleksa |
0.49 |
|
|
|
pieņemšanas punkti, sadzīves nami, |
|
|
|
apģērbu ķīmiskās tīrīšanas darbnīcas, |
|
|
|
foto darbnīcas u.tml. ēkas |
|
|
04 |
Dzelzceļa transporta dezinficēšanas - |
0.49 |
|
|
|
mazgāšanas un mazgāšanas - |
|
|
|
tvaicēšanas punktu un staciju ēkas |
|
|
|
un pārmijnieku posteņu ēkas |
|
|
05 |
Ražošanas un citu nozaru kontroles - |
0.49 |
|
|
|
caurlaides punktu un apsardzes ēkas |
|
|
06 |
Meliorācijas sistēmu apkalpošanas ēkas |
0.49 |
|
|
07 |
Ugunsdzēsēju depo, posteņu ēku un |
0.49 |
|
|
|
inventāra šķūņi |
|
|
08 |
Soda izciešanas iestādes, cietumi un |
0.49 |
|
|
|
apcietinājuma centri, aizsardzības |
|
|
|
spēku, policijas vai ugunsdzēsības |
|
|
|
dienestu kazarmas |
|
|
09 |
Atejas un sabiedriskās tualetes |
0.49 |
|
|
10 |
Piebūves |
0.49 |
|
|
11 |
Verandas |
0.49 |
|
|
12 |
Vējtveri |
0.49 |
|
|
13 |
Citas, iepriekš neklasificētas, ēku tipu
grupas |
0.49 |
|
2 INŽENIERBŪVES
21 Transporta būves 211 Šosejas, ielas, un ceļi
|
| 2111 |
Šosejas |
|
|
0.42 |
| 2112 |
Ielas un ceļi |
|
|
0.42 |
| 212 Sliežu ceļi |
| 2121 |
Dzelzceļi |
|
|
0.42 |
| 2122 |
Pilsētas sliežu ceļi |
|
|
0.42 |
| 213 Lidlauku
skrejceļi |
| 2130 |
Lidlauku skrejceļi |
|
|
0.42 |
| 214 Tilti,
estakādes, tuneļi un pazemes ceļi |
| 2141 |
Tilti un estakādes |
|
|
0.42 |
| 2142 |
Tuneļi un pazemes ceļi |
|
|
0.42 |
| 215 Ostas, ūdensceļi, dambji un citas
hidrobūves |
| 2151 |
Ostas un kuģojamie kanāli |
|
|
0.42 |
| 2152 |
Dambji |
|
|
0.42 |
| 2153 |
Akvedukti, apūdeņošanas |
|
0.42 |
|
un kultivācijas hidrobūves |
| 22 Cauruļvadi, sakaru un elektropārvades
līnijas |
|
|
| 221 Maģistrālie cauruļvadi, maģistrālās
sakaru un elektropārvades līnijas |
| 2211 |
Maģistrālie naftas un |
|
|
0.42 |
|
gāzes cauruļvadi |
| 2212 |
Maģistrālie ūdens |
|
|
0.42 |
|
cauruļvadi |
| 2213 |
Maģistrālās sakaru līnijas |
|
|
0.42 |
| 2214 |
Maģistrālās |
|
|
0.42 |
|
elektropārvades līnijas |
| 222 Vietējie cauruļvadi un kabeļi |
| 2221 |
Vietējie gāzapgādes |
|
|
0.42 |
|
cauruļvadi |
| 2222 |
Vietējie ūdensapgādes |
|
|
0.42 |
|
cauruļvadi |
| 2223 |
Vietējie notekūdeņu |
|
|
0.42 |
|
cauruļvadi |
| 2224 |
Vietējie elektrokabeļi |
|
|
0.42 |
|
un sakaru kabeļi |
| 23 Rūpniecības kompleksās būves |
| 2301 |
Iežguves būves |
|
|
0.42 |
| 2302 |
Elektrostaciju būves |
|
|
0.42 |
| 2303 |
Ķīmiskās rūpniecības būves |
|
|
0.42 |
| 2304 |
Iepriekš neklasificētas |
|
|
0.42 |
|
smagās rūpniecības būves |
| 24 Citas
inženierbūves |
| 241 Sporta un atpūtas būves |
| 2411 |
Sporta laukumi |
|
|
0.49 |
| 2412 |
Citas sporta un |
|
|
0.49 |
|
atpūtas būves |
| 242 Citas, iepriekš neklasificētas,
inženierbūves |
| 2420 |
Citas, iepriekš |
|
|
0.42 |
|
neklasificētas, |
|
inženierbūves |
4. pielikums
Attāluma līdz tuvākajai
pilsētai koeficients - K l
| Attālums no būves atrašanās vietas līdz
tuvākajai pilsētai |
Koeficients Kl |
| līdz 5 km |
0.95 |
| no 6 km līdz 10 km |
0.85 |
| no 11 km līdz 20 km |
0.70 |
| no 21 km līdz 35 km |
0.50 |
| no 36 km un vairāk |
0.30 |
5. pielikums
Būvju vienību cenu
krājumos ietverto būvju (pēc nosaukumiem) alfabētiskais
rādītājs
| |
|
|
|
| Būves nosaukums pēc būvju vienību cenu
krājuma |
Būvju vienību cenu krājumu
numuri |
| 1 |
2 |
|
| A dministratīvās ēkas |
26-II/5/31 |
28 |
28.1 |
32.1 |
32.3 |
| Ādu apstrādes rūpnīcas |
14 |
| Aerācijas kanāli |
11 |
| Aerārijs |
23/27.1 |
| Aeroloģiskās stacijas |
28.4 |
| Aeroteki, aerofiltri |
27 |
| Aitu kūtis un apmetnes |
2/26-I/26-II/26-IV/36 |
| Aizbīdņi |
23/27 |
37 |
| Aizdambējumi |
20 |
23/27 |
| Aizsargbūves |
20 |
37 |
| Aizsargrežģu būves |
27 |
| Aizsargsienas |
12 |
| Aizsprosti |
5 |
12 |
23/27.1 |
37 |
| Akas |
21 |
27 |
28.1 |
23/27 |
37 |
| Akmens konstrukcijas |
23/27.1 |
| Akmeņu apstrādes rūpnīcas |
8 |
| Akvedukti |
5 |
16 |
21 |
23/27.1 |
| Alus rūpnīcas |
10 |
| Ambulances |
2/26-I/26-II/26-IV/36 |
| Amonjaka noliktavas |
2/26-I/26-II/26-IV/36 |
| Analīna krāsu un laku ražotne |
6 |
| Anatomiskie korpusi |
26-II/5/31 |
| Anetezīna ražotne |
17 |
| Antipiretiku ražotne |
17 |
| Antiseptēšanas cehi |
9 |
| Apakšstacijas |
5 |
9 |
21 |
30 |
| Aparātu ceha ēkas |
7 |
| Apavu fabrikas |
14 |
| Apavu remonta darbnīcas |
28 |
| Apdares fabrikas |
14 |
| Apgaismojuma (stadionu) būves |
34.2 |
| Apģērbu tīrītavas |
28 |
| Apmales |
23/27.1 |
| Apsekošanas punkti |
2/26-I/26-II/26-IV/36 |
| Aptiekas |
26-II/5/31 |
| Apūdeņošanas un |
| nosusināšanas sistēmas |
37 |
| Apvaļņošanas darbi |
37 |
| Ārējie inženiertīkli |
23/27 |
| Ārējie kanalizācijas tīkli |
21 |
| Arkveida būves |
18.1 |
| Armatūras ražotnes |
8 |
23/27 |
| Arodskolas |
32.1 |
| Ārstnieciski-profilaktiskās iestādes |
26-II/5/31 |
| Asfalta ražotnes |
8 |
| Asfaltbetona rūpnīcas |
8 |
| Asinsaizvietotāju ražotne |
17 |
| Atbalsta sienas |
23/27.1 |
| Atejas |
21 |
23/27.1 |
28 |
32.2 |
| Atfluorēšanas stacijas |
25 |
| Atgaisotāji |
23/27 |
| Atkritumu cehi |
13 |
| Atmizošanas cehi |
9 |
| Atpūtas nami |
26-II/5/31 |
| Atrakcijas |
23/27.1 |
| Ātrteces |
21 |
| Attīrīšanas stacijas |
9 |
12 |
27 |
| Atūdeņošanas bloki |
8 |
| Augļu glabātuves |
2/26-I/26-II/26-IV/36 |
| Augļu pārstrādes punkti |
2/26-I/26-II/26-IV/36 |
| Augstskolas un speciālo |
| mācību iestādes |
32.1 |
| Aušanas darbnīcas |
2/26-I/26-II/26-IV/36 |
| Aušanas fabrikas |
14 |
| Autoceļi |
9 |
23/27 |
| Automašīnu gaismekļu ražotnes |
8 |
| Automašīnu izkraušanas ietaises |
10 |
13 |
| Autopāviljoni |
23/27 |
| Autostacijas |
23/27 |
| Autotransformatori |
5 |
| Aviācijas un lidostu būves |
24 |
| Avīžu iespieddarbi |
15 |
| Azbestcementa ražotnes |
8 |
| Bagātināšanas korpusi |
8 |
| Bākas |
20 |
| Balasta segums |
19 |
21 |
| Balsti (dažādi) |
21 |
23/27.1 |
| Balsti (dzelzbetona) |
5 |
| Balsti (metāla) |
28.1 |
| Baļķvilči |
9 |
| Barības noliktavas |
2/26-I/26-II/26-IV/36 |
| Barības rūpnīcas |
11 |
| Barības virtuves |
2/26-I/26-II/26-IV/36 |
| Baseini |
5 |
8 |
9 |
12 |
25 |
27 |
|
32.1 |
| Basketbola laukumi |
23/27.1 |
32.1 |
34.2 |
| Bāzes |
16 |
21 |
23/27 |
2/26-I/26-II/26-IV/36 |
|
33 |
34.2 |
| Bedres |
2/26-I/26-II/26-IV/36 |
28.1 |
| Benzīna uzpildes stacijas |
23/27 |
| Bērnu dārzi |
2/26-I/26-II/26-IV/36 |
32.3 |
| Bērnu iestādes |
32.3 |
| Bērnu nami un pilis |
34.1 |
| Bērnu silītes |
32.3 |
| Bērnu vasaras nometnes |
34.1 |
| Betona un dzelzbetona konstrukcijas |
23/27.1 |
37 |
| Bezalkoholisko dzērienu ražotnes |
10 |
2/26-I/26-II/26-IV/36 |
| Bibliotekas |
28 |
34.1 |
| Biofiltri |
21 |
27 |
| Bišu mājiņas |
2/26-I/26-II/26-IV/36 |
| Bituma glabātuves |
8 |
| Bloķēšanas punkti |
21 |
| Bortakmeņi |
23/27 |
| Brasli |
37 |
| Brauktuves |
23/27.1 |
| Brigāžu mājas lopkopjiem |
2/26-I/26-II/26-IV/36 |
| Brikešu un pusbrikešu rūpnīcas |
16 |
| Briketēšanas cehi |
10 |
13 |
| Bruģis |
21 |
| Brusas |
21 |
| Būdas, būdiņas |
21 |
25 |
| Bufetes |
2/26-I/26-II/26-IV/36 |
23/27.1 |
33 |
| Būnas |
23/27.1 |
| Bunkuri |
8 |
9 |
10 |
16 |
19 |
| Būvapkalumu ražotnes |
2/26-I/26-II/26-IV/36 |
| Būviecirkņi |
2/26-I/26-II/26-IV/36 |
| Būvmateriālu rūpnīcas |
8 |
| C āļu kūtis |
2/26-I/26-II/26-IV/36 |
| Caurbrauktuves |
13 |
| Caurlaides punkti |
18 |
28.1 |
23/27 |
| Caurplūdes mērītāji |
37 |
| Caurtekas |
21 |
23/27.1 |
37 |
| Cauruļvadi |
5 |
6 |
16 |
23/27 |
23/27.1 |
| Cehi (dažādi) |
2/26-I/26-II/26-IV/36 |
20 |
21 |
| Celiņi |
23/27.1 |
| Celtņi |
9 |
20 |
| Celulozes un papīra rūpniecība |
9 |
| Ceļu aprīkojums |
23/27 |
23/27.1 |
| Ceļu norobežojumi |
23/27.1 |
| Ceļu segums |
19 |
23/27.1 |
30 |
37 |
| Ceļu aprīkojumu zīmes |
20 |
21 |
| Ceļu iekārtojums |
19 |
| Ceļu pārvadi |
23/27.1 |
| Cementa ražotnes |
8 |
| Cirki |
34 |
| Cūku kūtis un fermas |
2/26-I/26-II/26-IV/36 |
| Cukuru ražotnes |
10 |
| D ambji |
5 |
23/27.1 |
| Darbnīcas (dažādas) |
2/26-I/26-II/26-IV/36 |
9 |
13 |
18 |
|
18.1 |
21 |
23/27 |
26-II/5/31 |
28 |
|
32.1 |
32.2 |
| Dārzeņu apstrādes punkti (cehi) |
33 |
| Dārzeņu pārstrādes punkti |
2/26-I/26-II/26-IV/36 |
| Dārzeņu skābēšanas punkti |
33 |
| Dārzu mājiņas |
28.3 |
| Daudzdzīvokļu dzīvojamās mājas |
28.5 |
| Degvielu noliktavas |
21 |
24 |
| Degvielu uzpildes stacijas |
23/27 |
| Deju laukumi |
28 |
| Dekorativās audzētavas |
23/27.1 |
| Depo (visa veida) |
9 |
18 |
19 |
21 |
|
2/26-I/26-II/26-IV/36 |
30 |
| Desu ražotnes |
11 |
2/26-I/26-II/26-IV/36 |
| Dezifikācijas līdzekļu noliktavas |
2/26-I/26-II/26-IV/36 |
| Dezinfektoriji |
21 |
| Dezinficēšanas-mazgāšanas |
| stacijas un pirtis |
21 |
2/26-I/26-II/26-IV/36 |
| Dienesta ēkas |
21 |
2/26-I/26-II/26-IV/36 |
| Dīkeri (zemtekas) |
16 |
21 |
23/27.1 |
37 |
| Dīķi |
12 |
23/27.1 |
| Dīzeļmotoru ēkas |
25 |
| Drenāžas |
5 |
23/27 |
23/27.1 |
30 |
37 |
| Drupināšanas iecirkņi |
5 |
8 |
19 |
| Dūmsūcēju būves |
8 |
| Dūmvadi |
32.1 |
| Dūņu dziedinātavas |
26-II/5/31 |
| Dūņu lauciņi |
27 |
| Dušas |
28 |
28.1 |
32.1 |
32.2 |
| Dzelzbetona izstrādājumu rūpnīcas |
8 |
| Dzelzceļa ēkas un būves |
9 |
16 |
19 |
21 |
| Dzelzceļa vagonu izkraušanas ierīces |
10 |
13 |
21 |
| Dzemdību nami |
26-II/5/31 |
| Dzemdību nodaļas (govju) |
2/26-I/26-II/26-IV/36 |
| Dzesēšanas, maisīšanas cehi |
8 |
| Dziedniecības pāviljoni |
26-II/5/31 |
| Dzirnavas (dažādas nozīmes) |
8 |
13 |
2/26-I/26-II/26-IV/36 |
| Dzīvnieku mazgātuves un vannas |
2/26-I/26-II/26-IV/36 |
| Dzīvojamās mājas |
28 |
28.1 |
28.6 |
2/26-I/26-II/26-IV/36 |
| Ē dnīcas |
9 |
2/26-I/26-II/26-IV/36 |
26-II/5/31 |
|
32.1 |
32.2 |
32.3 |
33 |
| Ekipēšanas ierīces (dzelzceļa) |
21 |
| Ekranēšana |
25 |
| Ekranēšanas ierīces |
25 |
| Elektriskās apakšstacijas |
5 |
| Elektriskās stacijas |
5 |
9 |
| Elektriskie tīkli |
5 |
21 |
| Elektromašīnu remonts |
28 |
| Elektrotransports |
30 |
| Elektrovadi |
5 |
| Elevātori |
10 |
2/26-I/26-II/26-IV/36 |
| Elliņi (krānu estakādes) |
20 |
| Eļļas tvertnes |
5 |
| Emaljas sagatavošanas ēkas |
8 |
| Enerģijas piegādes stacijas |
21 |
| Enkuri |
20 |
| Estakādes |
8 |
9 |
12 |
16 |
19 |
19.1 |
|
21 |
23/27 |
| Estrādes |
23/27.1 |
| F asēšanas cehi |
17 |
| Fasondaļas |
23/27 |
37 |
| Fermentizācijas cehi |
17 |
| Fīderu līnijas |
25 |
| Filmu bāzes |
15 |
| Filmu glabātuves |
15 |
| Filtrēšanas stacijas |
27 |
37 |
| Finieru ražotnes |
9 |
| Fontāni |
23/27.1 |
| Formēšanas stendi |
8 |
| Foto kombināti |
28 |
| Frizētavas |
28 |
| Fumigācijas kameras |
33 |
| Futbola laukumi |
32.1 |
| Futlāri (santehnikai) |
23/27.1 |
| G abioni |
21 |
23/27.1 |
| Gaisa izvadi |
37 |
| Gaisa līnijas |
25 |
| Gaismekļi |
5 |
| Galerijas (dažādas) |
8 |
9 |
10 |
12 |
13 |
27 |
|
28.1 |
15 |
| Gaļas ražotnes |
11 |
| Garažas |
2/26-I/26-II/26-IV/36 |
9 |
19 |
21 |
|
23/27 |
| Garderobes |
23/27.1 |
| Gāzejas un vadi |
5 |
19 |
23/27 |
| Gāzes attīrīšanas iekārtas |
6 |
| Gāzes kameras |
2/26-I/26-II/26-IV/36 |
| Glabātuves (dažādas) |
10 |
21 |
2/26-I/26-II/26-IV/36 |
32.1 |
|
33 |
| "Gorodko" spēļu laukumi |
32.1 |
34.2 |
| Govju kūtis |
2/26-I/26-II/26-IV/36 |
| Grādētavas |
27 |
| Grāmatu bāzes |
15 |
| Grāmatu krātuves |
34.1 |
| Grants mazgāšanas korpusi |
8 |
| Graudu kaltes |
2/26-I/26-II/26-IV/36 |
| Graudu pārstrādes uzņēmumi |
13 |
2/26-I/26-II/26-IV/36 |
| Grunts cementizācija |
37 |
| Gulšņi |
21 |
| Guļamkorpusi |
26-II/5/31 |
32.2 |
32.3 |
| Guļbaļķi |
21 |
| Gumijas tehniskie izstrādājumi |
6 |
| Ģimnastikas laukumi |
34.2 |
| Ģimnastikas zāle |
34.2 |
| Ģipša rūpnīcas |
8 |
| H idranti |
37 |
| Hidrotehniskās būves |
12 |
21 |
23/27.1 |
37 |
| Hidrotransportieri |
10 |
| Hlora ražotnes |
6 |
| Hlorētavas |
27 |
| I ekraušanas iecirkņi |
8 |
| Iepildīšanas kolonnas |
21 |
| Ierīces (dazādas) |
21 |
| Iesalu rūpnīcas |
10 |
| Ietves |
23/27 |
| Individuālās dzīvojamās mājas |
28.6 |
| Inkubācijas cehi |
12 |
| Inkubatori |
2/26-I/26-II/26-IV/36 |
| Izolatori |
25 |
| J ahtklubi |
34.2 |
| Jaunlopu kūtis |
2/26-I/26-II/26-IV/36 |
| Joslu nostiprināšana |
23/27 |
| Jūras piestatņu būves |
20 |
| Juvelieru izstrādājumu rūpnīcas |
7 |
| K abeļi |
5 |
25 |
| Kabīnes |
23/27.1 |
| Kafejnīcas |
23/27.1 |
33 |
| Kafetērijas |
23/27.1 |
33 |
| Kaltes |
13 |
19 |
2/26-I/26-II/26-IV/36 |
28 |
|
28.1 |
32.3 |
| Kaļķu ražotnes |
8 |
| Kameras |
8 |
19 |
2/26-I/26-II/26-IV/36 |
23/27 |
|
33 |
| Kanāli |
5 |
10 |
19 |
23/27 |
23/27.1 |
27 |
|
37 |
| Kanalizācijas tīkli un būves |
21 |
25 |
23/27 |
27 |
23/27.1 |
| Kantori |
21 |
25 |
2/26-I/26-II/26-IV/36 |
| Kaņepāju apstrādes ražotnes |
14 |
| Kāpnes (metāla, betona) |
6 |
19.1 |
23/27.1 |
| Karantīnas izolatori |
11 |
| Karoga kārtis |
23/27.1 |
| Kartona fabrikas |
8 |
14 |
| Kartupeļu glabātuves |
2/26-I/26-II/26-IV/36 |
| Kastu cehi |
12 |
| Katlu mājas |
9 |
18 |
21 |
2/26-I/26-II/26-IV/36 |
|
28 |
28.1 |
32.1 |
32.2 |
| Kautuves (dažādas) |
11 |
2/26-I/26-II/26-IV/36 |
| Kazarmas |
21 |
| Kazeīna rūpnīcas |
11 |
| Kažokādu rūpnīcas |
14 |
| Keramzītu ražotnes |
8 |
| Kino rūpniecība |
15 |
| Kinozāles |
26-II/5/31 |
34 |
| Kioski |
23/27.1 |
28 |
33 |
| Klīnikas |
2/26-I/26-II/26-IV/36 |
| Klubi |
2/26-I/26-II/26-IV/36 |
26-II/5/31 |
32.1 |
|
32.3 |
34 |
34.1 |
| Kokskaidu ražotnes |
9 |
| Koksnes ķīmiskā rūpniecība |
9 |
| Koksnes pārstrāde |
9 |
2/26-I/26-II/26-IV/36 |
| Kokšķiedru plātņu ražotnes |
9 |
| Koku sugas |
23/27.1 |
| Kokzāģētavas |
2/26-I/26-II/26-IV/36 |
| Kolektori |
23/27.1 |
| Kolorīferi |
8 |
| Kombinētās lopbarībās ražotnes |
2/26-I/26-II/26-IV/36 |
| Kompensātoru ēkas |
5 |
23/27 |
| Komplektēšanas cehi |
8 |
| Kompresoru ēkas |
5 |
17 |
18 |
21 |
|
2/26-I/26-II/26-IV/36 |
| Komunālās dzīvojamās mājas |
28 |
| Komutātori |
25 |
| Konditorijas ražotnes |
10 |
| Konjaku ražotnes |
10 |
| Konservu ražotnes |
10 |
12 |
2/26-I/26-II/26-IV/36 |
| Kontakttīkli |
30 |
21 |
| Kontrolstacijas (tirgus) |
33 |
| Kopēšanas fabrikas |
15 |
| Kopmītnes |
18 |
28 |
28.1 |
32.1 |
| Kosmiskās sakaru stacijas |
25 |
| Kravas pacelšanas ierīces |
5 |
| Krejotavas |
10 |
| Kronšteini |
5 |
| Kūdras ieguves lauki |
16 |
| Kūdras podiņi |
2/26-I/26-II/26-IV/36 |
| Kūdras rūpniecības būves |
16 |
| Kuģu ceļu aprīkojumu zīmes |
20 |
| Kultūras nami |
2/26-I/26-II/26-IV/36 |
34 |
34.1 |
| Kupināšanas cehi |
12 |
| Kūtis |
21 |
2/26-I/26-II/26-IV/36 |
| Kūtsmēslu krātuves |
2/26-I/26-II/26-IV/36 |
| Kvarca smilts bagātināšanas rūpnīcas |
8 |
| Kvēlspuldzes |
5 |
| Ķieģeļu ražotnes |
8 |
| Ķimikāliju noliktavas |
2/26-I/26-II/26-IV/36 |
| Ķīmiskās rūpniecības būves |
6 |
| Ķīmiskās tīrītavas |
17 |
28 |
| L abiekārtošanas darbi |
5 |
19.1 |
21 |
| Laboratorijas |
7 |
13 |
17 |
18 |
|
2/26-I/26-II/26-IV/36 |
| Lauksaimniecības būves |
2/26-I/26-II/26-IV/36 |
| Lauku iecirkņi |
2/26-I/26-II/26-IV/36 |
| Laukumi (dažādi) |
9 |
13 |
20 |
21 |
23/27.1 |
28 |
| Lecektis |
2/26-I/26-II/26-IV/36 |
| Ledus aizsardzības ietaises |
37 |
| Ledus pagrabi |
2/26-I/26-II/26-IV/36 |
| Levomicetīna ražotnes |
17 |
| Lianas |
32.3 |
| Lidlauki |
24 |
| Lidmašīnu nolaišanās būves |
24 |
| Liešanas cehi |
8 |
| Lietus mēteļu auduma ražotnes |
14 |
| Lifti |
25 |
| Liķieru rūpnīcas |
10 |
| Linu apstrādes ražotnes |
14 |
| Linu noliktavas |
2/26-I/26-II/26-IV/36 |
| Līvānu dzīvojamās mājas |
28.2-97 |
| Lopbarības cehi |
13 |
| Lopu novietnes un uzturēšanas
laukumi |
11 |
| Lopu pārejas tilti |
11 |
| Lopu uzturēšanas korpusi |
11 |
| M ācību-ražošanas
darbnīcas |
32.1 |
32.2 |
| Maizes ražotnes |
10 |
| Makaronu ražotnes |
10 |
| Mākslīgās ādas rūpnīcas |
14 |
| Mākslīgās šķiedras ražotnes |
6 |
| Malšanas nodaļas |
8 |
| Mālu glabātuves |
8 |
| Mālu sagatavošanas iecirkņi |
8 |
| Margarīna rūpnīcas |
10 |
| Margas |
23/27 |
| Marinādes cehi |
12 |
| Masti |
20 |
| Mašīnbūvniecības būves |
7 |
| Mazgātuves (dažādas) |
8 |
21 |
2/26-I/26-II/26-IV/36 |
23/27 |
|
28 |
28.1 |
32.1 |
| Mazuta saimniecības |
19 |
| Mēbeļu ražotnes |
9 |
28 |
| Medicīnas rūpniecības būves |
17 |
| Medicīnas stikla rūpnīcas |
17 |
| Medizolatori |
32.3 |
| Medpunkti |
26-II/5/31 |
| Mehanizētie punkti |
21 |
| Meliorācijas un hidrotehniskās būves |
16 |
| Metāla karbu rūpnīcas |
12 |
| Metālkonstrukcijas |
5 |
19.1 |
21 |
23/27.1 |
28 |
|
2/26-I/26-II/26-IV/36 |
| Metānteki |
27 |
| Meteoroloģiskās stacijas |
28.4 |
| Micēliju žāvešanas cehi |
17 |
| Miecvielu ekstraktu rūpnīcas |
14 |
| Mīkstā jumta seguma ražotnes |
8 |
| Miltu (zivju0 ražotnes |
12 |
| Minerālmēslu noliktavas |
2/26-I/26-II/26-IV/36 |
| Mizošanas cehi |
9 |
| Modes nami |
28 |
| Moli |
20 |
| Mucu cehi |
12 |
2/26-I/26-II/26-IV/36 |
| Muzeji |
34.1 |
| N aftas atdalītāji un smilšu
ķērāji |
19.1 |
21 |
27 |
| Naftas produktu uzglabāšanas būves |
19.1 |
25 |
| Navigācijas zīmes |
20 |
| Niedru plātņu rūpnīcas |
2/26-I/26-II/26-IV/36 |
| Nišas |
23/27 |
| Nogāžu nostiprinājumi |
12 |
20 |
23/27.1 |
25 |
| Nojumes (dažādas) |
9 |
12 |
18 |
23/27.1 |
25 |
|
2/26-I/26-II/26-IV/36 |
28 |
28.1 |
32.1 |
|
32.2 |
32.3 |
| Noliktavas (dažādas) |
5 |
8 |
9 |
10 |
12 |
13 |
|
14 |
17 |
18 |
18.1 |
20 |
21 |
|
23/27.1 |
27 |
2/26-I/26-II/26-IV/36 |
|
26-II/5/31 |
28.1 |
28.4 |
32.1 |
33 |
| Norobežojumi, nožogojumi |
18 |
23/27.1 |
| Nosēdbaseini |
27 |
37 |
| Nostiprinājumi |
23/27.1 |
27 |
| Nosušināšanas sistēmas |
21 |
37 |
| Notekūdeņi |
27 |
| O stu un kuģošanas |
| hidrotehniskās būves |
20 |
| P adziļinājumi |
21 |
| Pagrabi |
10 |
2/26-I/26-II/26-IV/36 |
28 |
28.1 |
|
32.3 |
| Pakalpojumu darbnīcas |
2/26-I/26-II/26-IV/36 |
28 |
32.1 |
| Pakšu kastes |
20 |
23/27.1 |
| Palīgnozīmes telpas un ēkas |
21 |
24 |
| Pāļi |
20 |
| Pamati |
9 |
| Parādes ieejas |
28.1 |
| Pārbrauktuves |
16 |
21 |
23/27.1 |
| Pārceltuves |
23/27.1 |
| Pārdotavas |
23/27.1 |
| Pārejas |
23/27 |
| Parfimērijas ražotnes |
8 |
10 |
| Pārgāzes |
21 |
| Pārkraušanas ietaises un mezgli |
8 |
16 |
| Pārmijas |
21 |
| Pārsūknēšanas stacijas |
21 |
| Pārvadi |
23/27.1 |
37 |
| Pasažieru ēkas |
24 |
| Pasta ēkas |
25 |
| Paukošanas laukumi |
34.2 |
| Paviljoni |
21 |
23/27 |
23/27.1 |
33 |
| Peldētavas |
23/27.1 |
32.1 |
| Pelnu un izdedžu vadi |
5 |
19 |
| Piebūves |
28 |
28.1 |
| Piena bloki |
2/26-I/26-II/26-IV/36 |
| Piena pieņemšanas punkti |
11 |
12 |
2/26-I/26-II/26-IV/36 |
28 |
| Piena rūpniecības ēkas |
11 |
| Piestātnes |
12 |
20 |
| Pilis |
34.1 |
| Pīļu kūtis |
2/26-I/26-II/26-IV/36 |
| Pinumu izstrādes cehi |
2/26-I/26-II/26-IV/36 |
| Pirtis |
21 |
2/26-I/26-II/26-IV/36 |
28 |
28.1 |
|
32.1 |
| Plastmasu rūpniecība |
6 |
| Platformas |
11 |
18 |
21 |
28.1 |
| Plātnes |
21 |
| Plātņu ražotnes |
9 |
2/26-I/26-II/26-IV/36 |
| Plēvju ražotnes |
14 |
| Pneimotransports |
9 |
| Poligrāfijas un kino rūpniecības
būves |
15 |
| Poliklīnikas |
26-II/5/31 |
| Polimēru materiālu ražotnes |
8 |
| Portiki |
28.1 |
| Posteņi |
20 |
21 |
28.1 |
| Pretaizdzīšanas ierīces |
19 |
| Profesionāli tehniskās skolas |
32.1 |
| Profilaktoriji |
23/27.1 |
26-II/5/31 |
| Promtekas |
21 |
| Pulksteņu remontdarbnīcas |
28 |
| Pulksteņu un pusvadītāju rūpnīcas |
7 |
| Punkti (dažādi) |
21 |
2/26-I/26-II/26-IV/36 |
| Pusfabrikātu kombināti |
33 |
| Putnu kombināti |
11 |
| Putnu mājiņas |
2/26-I/26-II/26-IV/36 |
| Putraimu cehi |
13 |
| R adioantenas |
25 |
| Radioloģiskie korpusi |
26-II/5/31 |
| Radiomasti |
25 |
| Radioreleju līnijas |
25 |
| Radiotehnikas rūpniecība |
7 |
| Raidstacijas |
25 |
| Rauga un cietes rūpnīcas |
10 |
| Reģenerācijas cehi |
9 |
| Remonta rūpnīcas |
23/27 |
2/26-I/26-II/26-IV/36 |
| Renes |
21 |
| Restorāni |
33 |
| Rezervuāri |
9 |
19.1 |
21 |
27 |
|
2/26-I/26-II/26-IV/36 |
37 |
| Rievsienas |
20 |
| Rūdu nesaturošu materiālu ieguve |
8 |
| Rūpnīcas pārvaldes ēkas |
18 |
| S abiedriskie korpusi |
26-II/5/31 |
32.1 |
| Sabiezinātā piena rūpnīcas |
11 |
| Sadales ierīces |
5 |
| Sadales punkti |
21 |
| Sadzīves pakalpojumu ēkas |
18 |
28 |
28.1 |
32.1 |
| Saimniecības ēkas un korpusi |
28.3 |
26-II/5/31 |
32.3 |
| Sakaru ēkas |
21 |
| Sakaru linijas |
5 |
| Sakaru mezgli |
25 |
| Sakņu glabātuves |
9 |
| Saldējuma rūpnīcas |
33 |
| Saldētavas (dažāda tipa) |
11 |
12 |
17 |
2/26-I/26-II/26-IV/36 |
|
33 |
| Sālīšanas rūpnīcas |
12 |
| Sanatorijas |
26-II/5/31 |
| Sanatorijas - mežu skolas |
32.2 |
| Sanitāri-tehniskās rūpnīcas |
8 |
| Sardzes dienesta telpas |
18 |
| Sardzes telpas |
21 |
| Sargtorņi ar sargbūdu |
2/26-I/26-II/26-IV/36 |
| Sarkano ķieģeļu ražotnes |
8 |
| Sārmu iztvaicēšanas cehi |
9 |
| Sausā piena rūpnīcas |
11 |
| Seglinieku darbnīcas |
2/26-I/26-II/26-IV/36 |
| Sēklu glabātuves |
2/26-I/26-II/26-IV/36 |
| Semaforu masti |
20 |
| Separācijas nodaļas |
11 |
2/26-I/26-II/26-IV/36 |
| Septiki |
27 |
| Sētas, žogi |
23/27.1 |
28 |
32.1 |
32.2 |
| Siera rūpnīcas |
11 |
| Signalizācijas |
21 |
| Sijāšanas bloki |
8 |
| Silikātu ķiģeļu ražotnes |
8 |
| Silosi |
10 |
13 |
| Siltumizolācijas plātņu ražotnes |
16 |
| Siltumnīcas |
2/26-I/26-II/26-IV/36 |
| Sintētisko materiālu ražotnes |
6 |
| Sintomicīna un levomicetina ražotnes |
17 |
| Sīpolu glabātuves |
2/26-I/26-II/26-IV/36 |
| Sivēnmāšu kūtis |
2/26-I/26-II/26-IV/36 |
| Skabbarības tvertnes |
2/26-I/26-II/26-IV/36 |
| Skābekļu ražotnes |
6 |
10 |
| Skābes un sodas ražotnes |
6 |
| Skābju ražotnes |
9 |
| Skaidu un taras ražotnes |
9 |
| Skapji (signalizācijas) |
21 |
| Skolas (dažādas) |
32.1 |
32.2 |
33 |
| Skolu internāti |
32.2 |
| Skrejdzirnavas (veltņu) |
8 |
| Skursteņi |
5 |
19 |
32.1 |
| Slāpekļa rūpniecība |
6 |
| Slaukšanas iekārtas |
2/26-I/26-II/26-IV/36 |
| Slēpošanas bāzes |
34.2 |
| Slēpošanas stacijas |
32.1 |
| Slidkalniņi |
32.3 |
| Sliežu ceļi |
5 |
9 |
19 |
20 |
21 |
|
2/26-I/26-II/26-IV/36 |
30 |
| Slimnīcas |
26-II/5/31 |
| Slipņi |
20 |
| Slūžas, regulātori |
12 |
16 |
37 |
| Smagatlētikas laukumi |
34.2 |
| Smēdes |
2/26-I/26-II/26-IV/36 |
| Smilšu pārstrādes rūpnīcas |
8 |
| Smilšu uztvērēji |
21 |
27 |
| Smiltnīcas |
32.3 |
| Spēļu stūrīši |
23/27.1 |
| Spirta rūpnīcas |
10 |
17 |
| Sporta celtnes |
32.1 |
32.2 |
34.2 |
| Stabiņi |
21 |
23/27 |
| Stabu (sakaru) līnijas |
25 |
| Stacijas |
21 |
25 |
23/27 |
30 |
| Staļļi (visa veida) |
9 |
18 |
2/26-I/26-II/26-IV/36 |
| Stapeļi |
20 |
| Stendi |
33 |
| Stikla rūpnīcas |
8 |
| Straujtecas |
5 |
16 |
23/27.1 |
37 |
| Sūkņu stacijas |
5 |
9 |
10 |
16 |
19.1 |
21 |
|
23/27.1 |
27 |
37 |
| Suņu audzētavas |
18 |
2/26-I/26-II/26-IV/36 |
| Svaru ierīces un būves |
13 |
21 |
| Sviesta izstrādājumu ražotnes |
10 |
| Šahtas |
5 |
| Šahtu akas |
21 |
| Šautuves |
23/27.1 |
32.1 |
34.2 |
| Šihtas sagatavošanas korpuss |
7 |
| Šķembu rūpnīcas |
8 |
| Šķirotavas inertiem materiāliem |
8 |
| Šķūni (dažādi) |
8 |
9 |
18.1 |
21 |
|
2/26-I/26-II/26-IV/36 |
28 |
28.1 |
32.2 |
| Šūšanas darbnīcas |
28 |
2/26-I/26-II/26-IV/36 |
| T abākas rūpnīcas |
10 |
| Tabazīda ražotnes |
17 |
| Tablešu ražotnes |
17 |
| Taras ražotnes |
10 |
11 |
| Tauku ražotnes |
11 |
12 |
| Tauku uztvēreji |
11 |
| Taukvielu stacijas |
10 |
| Teātri |
34 |
| Tehnikumi |
32.1 |
| Tehniskās apkopes punkti |
24 |
23/27 |
| Tējnīcas |
2/26-I/26-II/26-IV/36 |
| Teknes |
21 |
23/27.1 |
| Tekstīlrūpniecība |
14 |
| Telefonu kabīnes |
25 |
| Telefonu stacijas /ATS/ |
25 |
| Televīzijas centri |
25 |
| Teļu kūtis |
2/26-I/26-II/26-IV/36 |
| Tenisa laukumi |
23/27.1 |
23.1 |
34.2 |
| Teobromīna-koefrīna ražotnes |
17 |
| Terases |
28 |
28.1 |
| Tīkli |
21 |
| Tilta laiduma konstrukcijas |
23/27.1 |
| Tilti ar dažādu nozīmi |
13 |
16 |
21 |
23/27.1 |
37 |
| Tiltiņi |
21 |
23/27.1 |
| Tipografijas būves |
15 |
| Tirdzniecības stendi |
23/27.1 |
| Tirdzniecības uzņēmumi |
33 |
| Tirgi |
33 |
| Tīrītavas |
28 |
| Tītaru kūtis |
2/26-I/26-II/26-IV/36 |
| Torņi (dažādi) |
5 |
9 |
10 |
13 |
21 |
23/27.1 |
|
2/26-I/26-II/26-IV/36 |
| Tramvaju kontakttīkli |
30 |
| Tramvaju un trolejbusu depo |
30 |
| Transformātori |
5 |
18 |
21 |
25 |
|
2/26-I/26-II/26-IV/36 |
28.1 |
32.1 |
| Tribīnes |
23/27.1 |
| Trikotāžas fabrikas |
14 |
| Trolejbusu kontakttīkli |
30 |
| Tualetes |
23/27.1 |
28 |
| Tuneļi |
5 |
10 |
19 |
21 |
23/27.1 |
| Turistu bāzes |
26-II/5/31 |
| Tvaicēšanas kameras |
8 |
| Tvērtnes (dažādas) |
12 |
13 |
16 |
2/26-I/26-II/26-IV/36 |
| U gunsdrošības zonas |
16 |
| Ugunsdrošības posteņi |
18 |
2/26-I/26-II/26-IV/36 |
28.1 |
| Ūdens aizvada būves |
23/27.1 |
| Ūdens akas |
9 |
21 |
23/27.1 |
| Ūdens apgāde |
5 |
23/27.1 |
27 |
| Ūdens atdzelžošanas iekārtas |
27 |
| Ūdens attīrīšanas būves |
5 |
21 |
| Ūdens baseini |
34.2 |
| Ūdens caurteces |
12 |
| Ūdens dzesētāji |
5 |
| Ūdens izteces |
12 |
| Ūdens krātuves |
2/26-I/26-II/26-IV/36 |
37 |
| Ūdens kritumi |
16 |
23/27.1 |
| Ūdens mērītāji |
37 |
| Ūdens mīkstināšanas stacijas |
27 |
| Ūdens motorstacijas |
34.2 |
| Ūdens ņemšanas ietaises |
27 |
28.1 |
37 |
| Ūdens pārgāzes |
12 |
| Ūdens pievadkanāli |
27 |
| Ūdens promtekas |
16 |
| Ūdens regulātori |
12 |
23/27.1 |
23/27 |
37 |
| Ūdens rezervuāri |
37 |
| Ūdens saimniecības būves |
37 |
| Ūdens stacijas |
34.2 |
| Ūdens teknes |
12 |
| Ūdens tilpnes |
16 |
34.2 |
| Ūdens torņi |
21 |
2/26-I/26-II/26-IV/36 |
| Ūdens un kanalizācijas būves |
27 |
| Ūdensvadu būves |
27 |
37 |
| Upju piestatņu būves |
20 |
| Urbumi |
37 |
| Uzbērumi |
21 |
| V airogi |
21 |
23/27 |
| Vakuuma vibrācijas ietaises |
8 |
| Vārīšanas un mazgāšanas cehi |
9 |
| Vārti |
18 |
23/27.1 |
32.1 |
32.2 |
| Veikali |
18 |
20 |
2/26-I/26-II/26-IV/36 |
32.1 |
|
33 |
| Vēja dzinēji |
2/26-I/26-II/26-IV/36 |
| Vējtveri |
28 |
28.1 |
| Veldzēšanas bloki |
8 |
| Velotreki |
34.2 |
| Veltuvju -tūbu uzņēmumi |
14 |
| Veļas mazgātuves |
2/26-I/26-II/26-IV/36 |
28 |
28.1 |
32.1 |
| Verandas |
28 |
28.1 |
| Vērpšanas fabrikas |
14 |
| Veselības aizsardzības ēkas |
26-II/5/31 |
| Vezumnieku piederumu darbnīcas |
2/26-I/26-II/26-IV/36 |
| Viadukti |
16 |
21 |
| Vieglās un tekstīlrūpniecības būves |
14 |
| Viesnīcas |
2/26-I/26-II/26-IV/36 |
28 |
28.1 |
| Vilnas apstrādes ražotnes |
2/26-I/26-II/26-IV/36 |
14 |
| Viļnlauzēji un sienas |
23/27.1 |
| Vīna un šampanieša rūpnīcas |
10 |
| Vircu tvertnes |
2/26-I/26-II/26-IV/36 |
| Virtuves |
18 |
2/26-I/26-II/26-IV/36 |
33 |
| Vispārizglītojošās skolas |
32.2 |
| Vistu kūtis |
2/26-I/26-II/26-IV/36 |
| Vitrīnas |
23/27.1 |
| Volejbola laukumi |
23/27.1 |
32.1 |
34.2 |
| Z emes klātne |
19 |
23/27.1 |
| Ziepju rūpnīcas |
10 |
| Zinātniski pētniecības institūti
/ZPI/ |
28.4 |
| Zirgu staļļi |
2/26-I/26-II/26-IV/36 |
| Zivju audzētavas |
12 |
| Zivju rūpniecības ēkas un būves |
12 |
| Zoļu rūpnīcas |
14 |
| Zosu kūtis |
2/26-I/26-II/26-IV/36 |
| ZPI laboratoriju korpusi |
28.4 |
| ZPI noliktavas |
28.4 |
| ZPI speciālās nozīmes korpusi |
28.4 |
| Zvērkopības fermu šedi |
2/26-I/26-II/26-IV/36 |
| Zvēru būri |
2/26-I/26-II/26-IV/36 |
| Žāvētavas |
8 |
9 |
10 |
21 |
28.1 |
32.1 |
|
32.3 |
| Žogi (dažādi) |
21 |
28 |
32.1 |
32.2 |
23/27.1 |
| Žurnālu iespieddarbi |
15 |
|
|
|
|
6.pielikums

7.pielikums
