Saeima ir pieņēmusi un Valsts
prezidents izsludina šādu likumu:
Par Latvijas Republikas valdības un Krievijas
Federācijas valdības vienošanos par Latvijas Republikas
vēstniecības Krievijas Federācijā un Krievijas Federācijas
vēstniecības Latvijas Republikā izvietošanas
nosacījumiem
1.pants. 2010.gada 20.decembrī Maskavā parakstītā
Latvijas Republikas valdības un Krievijas Federācijas valdības
vienošanās par Latvijas Republikas vēstniecības Krievijas
Federācijā un Krievijas Federācijas vēstniecības Latvijas
Republikā izvietošanas nosacījumiem (turpmāk - Vienošanās) ar šo
likumu tiek pieņemta un apstiprināta.
2.pants. Vienošanās paredzēto saistību
izpildi koordinē Ārlietu ministrija.
3.pants. Vienošanās stājas spēkā tās 11.pantā
noteiktajā laikā un kārtībā, un Ārlietu ministrija par to paziņo
laikrakstā "Latvijas Vēstnesis".
4.pants. Likums stājas spēkā nākamajā dienā pēc tā
izsludināšanas. Līdz ar likumu izsludināma Vienošanās latviešu
valodā.
Likums Saeimā pieņemts 2011.gada 14.aprīlī.
Valsts prezidents
V.Zatlers
Rīgā 2011.gada 29.aprīlī
Latvijas Republikas valdība un Krievijas Federācijas
valdība, turpmāk tekstā sauktas par Pusēm,
vēloties nodrošināt atbilstošus uzturēšanās un darba
apstākļus Latvijas Republikas vēstniecībai Krievijas Federācijā
un Krievijas Federācijas vēstniecībai Latvijas
Republikā,
ņemot vērā 1961.gada 18.aprīļa Vīnes konvencijas par
diplomātiskajām attiecībām normas,
ir vienojušās par sekojošo.
1.pants
1.1. Krievijas Federācijas vēstniecības Latvijas
Republikā izvietošanas vajadzībām Latvijas Puse nodod Krievijas
Federācijai īpašumā ēkas un būves:
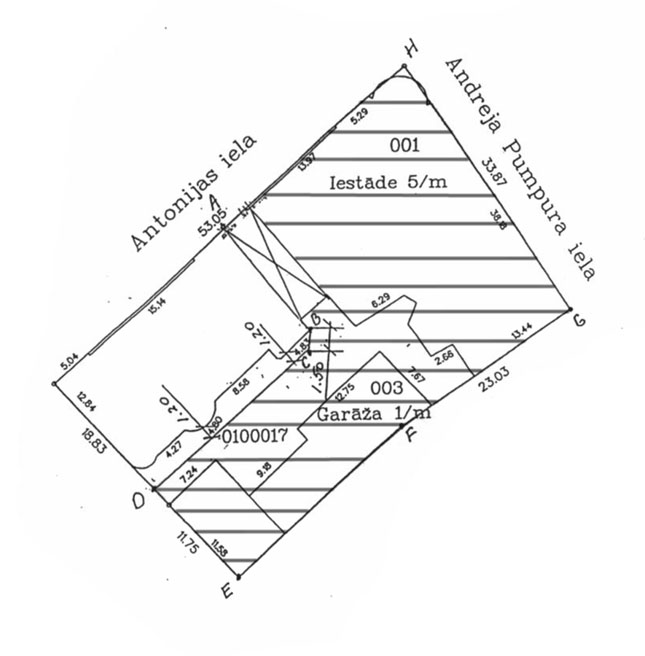
- adrese: Rīgā, Pumpura ielā 1 (Antonijas ielā 6), ēkas
daļu 001, ar kopējo platību 3132,1 m² un garāžu 003, ar kopējo
platību 212,7 m² (1.pielikums);
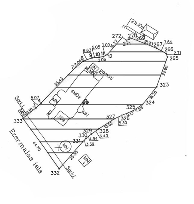
- adrese: Rīgā, Ezermalas ielā 34, visu ēku 001, ar
kopējo platību 2507,5 m², sūkņu staciju 002, ar kopējo platību
43,2 m² (2.pielikums).
1.2. Latvijas Puse nodod Krievijas Federācijai nomā uz
99 gadiem ar nomas maksu 1 lats gadā zemes gabalus, uz kuriem
atrodas šā panta 1.1. punktā minētās ēkas un būves:
- adrese: Rīgā, Pumpura ielā 1 (Antonijas ielā 6), zemes
gabala ar kadastra numuru 01000100017 "B" daļa 1170,0 m² platībā
(3.pielikums);
- adrese: Rīgā, Ezermalas ielā 34, kadastra numurs
01000842029, platība 4470 m² (4.pielikums);
- adrese: Rīgā, Ezermalas ielā 34a, zemes gabala ar
kadastra numuru 01000840056 "A" un "D" daļas 2845,0 m² platībā,
pēc piebraucamā ceļa izbūves ("B") zemes gabals Ezermalas ielā
34a tiks apvienots ar zemes gabalu Ezermalas ielā 34
(5.pielikums).
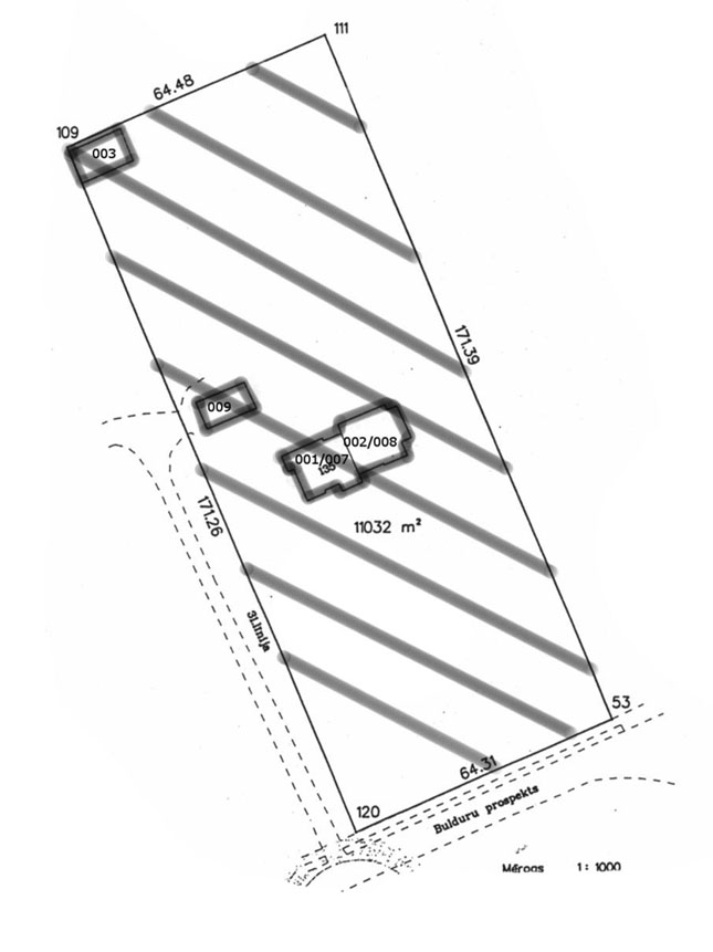
1.3. Krievijas Federācijas vēstnieka rezidences
vajadzībām Latvijas Puse nodod Krievijas Federācijai nomā uz 99
gadiem ar nomas maksu 1 lats gadā ēkas un būves šādā adresē:
Jūrmalā, Bulduru prospektā 135, ēka 001, ēka 002, pirts 003,
pagrabs 007, pagrabs 008 un garāža 009, ar kopējo platību 1060,9
m² un zemes gabalu ar kadastra numuru 13000042801, 11032,0 m²
platībā (6.pielikums).
Pēc Vienošanās spēkā stāšanās Pušu atbildīgās
institūcijas iespējami īsā laikā noslēgs atbilstošus nododamo
zemes gabalu nomas līgumus.
2.pants
2.1. Krievijas Puse nodod Latvijas Republikai īpašumā
ēkas un būves, kas tiek izmantotas Latvijas Republikas
vēstniecības Krievijas Federācijā vajadzībām, Maskavā, Čapligina
ielā 3, ēka Nr.1, ēka Nr.2, ēka Nr.4, ēka Nr.6, ar kopējo platību
7832,8 m² (7.pielikums).
2.2. Krievijas Puse nodod Latvijas Republikai nomā uz 99
gadiem ar nomas maksu 1 rublis gadā zemes gabalu ar kopējo
platību 9181,3 m², uz kura izvietotas 2.1.punktā minētās ēkas un
būves (8.pielikums).
Pēc Vienošanās spēkā stāšanās Pušu atbildīgās
institūcijas iespējami īsā laikā noslēgs atbilstošu nododamā
zemes gabala nomas līgumu.
3.pants
Pēc Vienošanās stāšanās spēkā Puses iespējami īsā laikā
savstarpēji saskaņotos termiņos atbilstoši katras valsts
normatīvajiem aktiem nodrošinās īpašumtiesību un nomas tiesību
noformēšanu bez maksas uz šīs Vienošanās 1.panta 1.1., 1.2., 1.3.
punktos un 2.panta 2.1. un 2.2. punktos minētajām ēkām, būvēm un
zemi.
4.pants
4.1. Ja Vienošanās 1.panta 1.1.punktā un 2.panta
2.1.punktā minētās ēkas un būves tiek pārdotas, tad Pusei, kuras
valsts teritorijā tās atrodas, ir pirmpirkuma
tiesības.
Vienošanās 1.panta 1.1.punktā un 2.panta 2.1.punktā
minēto ēku un būvju pārdošana iespējama vienīgi pēc saskaņošanas
ar Pusi, kuras valsts teritorijā tās atrodas.
Vienošanās darbība automātiski tiek pārtraukta attiecībā
uz pārdotajām ēkām un būvēm.
4.2. Vienošanās 1.panta 1.1.punktā un 2.panta 2.1.punktā
minēto ēku un būvju nodošana nomā trešajai pusei iespējama
vienīgi pēc saskaņošanas ar Pusi, kuras valsts teritorijā tās
atrodas.
Uz ēkām, būvēm vai to daļu, kas nodotas nomā, uz visu
nomas termiņu netiek attiecinātas privilēģijas un imunitātes,
kuras noteiktas 1961.gada 18.aprīļa Vīnes konvencijā par
diplomātiskajām attiecībām. Izbeidzot nomas līgumu un atsākot
minētā nekustamā īpašuma izmantošanu diplomātiskajām vajadzībām,
minētās privilēģijas un imunitātes atkal tiek attiecinātas uz šo
īpašumu.
4.3. Zemes gabalu, uz kuriem atrodas pārdošanai vai
nomai piedāvātie nekustamie īpašumi, lietošanas tiesības tiek
noformētas Pusēm savstarpēji saskaņojot, atbilstoši tās Puses,
kuras valsts teritorijā tie atrodas, normatīvajiem
aktiem.
5.pants
Puses garantē, ka Vienošanās 1. un 2.pantā minētie
nekustamie īpašumi nav apgrūtināti ar parādiem vai citiem
apgrūtinājumiem un pret tiem nevar tikt vērstas trešo pušu
pretenzijas.
6.pants
Saskaņā ar 1961.gada 18.aprīļa Vīnes konvencijas par
diplomātiskajām attiecībām 23.panta pirmo punktu Vienošanās 1. un
2.pantā minētie nekustamie īpašumi ir atbrīvoti no to aplikšanas
ar jebkura veida valsts vai pašvaldības nodokļiem un nodevām,
izņemot maksu par noteiktiem pakalpojumu veidiem.
7.pants
7.1. Maksājumus par komunālajiem pakalpojumiem
(elektrību, apkuri, karstā un aukstā ūdens padevi, gāzi un
citiem), ēkās ierīkotajām sakaru ierīcēm, kā arī Vienošanās 1. un
2.pantā minēto ēku un būvju kārtējo remontu un ēku un būvju
uzturēšanu, veic Puse, kuras īpašumā ir šīs ēkas un būves,
atbilstoši normām un tarifiem, kas ir spēkā valstī, kuras
teritorijā atrodas nekustamais īpašums.
7.2. Maksājumus par komunālajiem pakalpojumiem
(elektrību, apkuri, karstā un aukstā ūdens padevi, gāzi un
citiem), ēkās ierīkotajām sakaru ierīcēm, kā arī Vienošanās
1.panta 1.3.punktā minēto ēku un būvju kārtējo remontu un ēku un
būvju uzturēšanu, veic Puse, kura nomā šīs ēkas un būves,
atbilstoši normām un tarifiem, kas ir spēkā valstī, kuras
teritorijā atrodas nekustamais īpašums.
8.pants
8.1. Vienošanās 1.panta 1.1.punktā un 2.panta 2.1.
punktā minēto ēku un būvju rekonstrukciju veic Puse, kuras
īpašumā tās nodotas un atbilstoši projektiem, kas saskaņoti,
ievērojot tās valsts normatīvos aktus, kuras valsts teritorijā
atrodas nekustamais īpašums.
8.2. Vienošanās 1.panta 1.3.punktā minēto ēku un būvju
rekonstrukciju, kā arī jaunu ēku un būvju celtniecība uz
zemesgabaliem, kas minēti Vienošanās 1.panta punktos 1.2., 1.3.
un 2.panta punktā 2.2., veic Puse, kura nomā ēkas, būves un zemes
gabalus un atbilstoši projektiem, kas saskaņoti, ievērojot tās
valsts normatīvos aktus, kuras valsts teritorijā atrodas
nekustamais īpašums.
8.3. Puse, kura nodod Vienošanās 1. un 2.pantā minētos
nekustamos īpašumus, atļauj ievest rekonstrukcijai un
celtniecībai nepieciešamos materiālus un iekārtas, kā arī tos
izvest saskaņā ar noteikumiem, kādi paredzēti 1961.gada 18.aprīļa
Vīnes konvencijā par diplomātiskajām attiecībām, atbrīvojot no
muitas nodevām, nodokļiem un ar tiem saistītiem maksājumiem,
izņemot samaksu par glabāšanu, pārvadāšanu un tamlīdzīgiem
pakalpojumiem.
8.4. Puse, kuras valsts saņem īpašumā Vienošanās 1. un
2.pantā minētos nekustamos īpašumus, var nosūtīt uz savas valsts
vēstniecību rekonstrukcijas un celtniecības sagatavošanai
nepieciešamo tehnisko personālu un celtniekus, par viņu iespējamo
skaitu iepriekš savlaicīgi informējot otru Pusi.
9.pants
Vienošanās var tikt grozīta vai papildināta Pusēm par to
vienojoties rakstveidā.
10.pants
Ar Vienošanās izpildi un interpretāciju saistītie
strīdīgie jautājumi starp Pusēm tiks risināti diplomātiskā
ceļā.
11.pants
Vienošanās stājas spēkā pēdējā pa diplomātiskiem
kanāliem saņemtā rakstiskā paziņojuma saņemšanas datumā par to,
ka Puses izpildījušas nepieciešamās iekšējās procedūras, lai
Vienošanās varētu stāties spēkā.
Parakstīta Maskavā, 2010.gada 20.decembrī divos
eksemplāros, katrs latviešu un krievu valodā, abiem tekstiem ir
vienāds spēks.
| LATVIJAS REPUBLIKAS
VALDĪBAS VĀRDĀ |
KRIEVIJAS FEDERĀCIJAS
VALDĪBAS VĀRDĀ |
|
Edgars Skuja |
Sergejs Lavrovs (Sergey Lavrov) |
| Latvijas Republikas
ārkārtējais un pilnvarotais vēstnieks Krievijas
Federācijā |
Krievijas Federācijas
ārlietu ministrs |
1.pielikums
Latvijas Republikas valdības un Krievijas Federācijas
valdības
vienošanās par Latvijas Republikas vēstniecības Krievijas
Federācijā
un Krievijas Federācijas vēstniecības Latvijas Republikā
izvietošanas nosacījumiem
Būves novietnes shēma
Rīga, Pumpura iela 1 (Antonijas
iela 6)

2.pielikums
Latvijas Republikas valdības un Krievijas Federācijas
valdības
vienošanās par Latvijas Republikas vēstniecības Krievijas
Federācijā
un Krievijas Federācijas vēstniecības Latvijas Republikā
izvietošanas nosacījumiem
Rīga, Ezermalas iela 34

3.pielikums
Latvijas Republikas valdības un Krievijas Federācijas
valdības
vienošanās par Latvijas Republikas vēstniecības Krievijas
Federācijā
un Krievijas Federācijas vēstniecības Latvijas Republikā
izvietošanas nosacījumiem
Rīga, Pumpura iela1 (Antonijas iela
6)

4.pielikums
Latvijas Republikas valdības un Krievijas Federācijas
valdības
vienošanās par Latvijas Republikas vēstniecības Krievijas
Federācijā
un Krievijas Federācijas vēstniecības Latvijas Republikā
izvietošanas nosacījumiem
Rīga, Ezermalas iela 34

5.pielikums
Latvijas Republikas valdības un Krievijas Federācijas
valdības
vienošanās par Latvijas Republikas vēstniecības Krievijas
Federācijā
un Krievijas Federācijas vēstniecības Latvijas Republikā
izvietošanas nosacījumiem
Rīga, Ezermalas iela 34a

6.pielikums
Latvijas Republikas valdības un Krievijas Federācijas
valdības
vienošanās par Latvijas Republikas vēstniecības Krievijas
Federācijā
un Krievijas Federācijas vēstniecības Latvijas Republikā
izvietošanas nosacījumiem
Jūrmala, Bulduru prospekts 135

7.pielikums
Latvijas Republikas valdības un Krievijas Federācijas
valdības
vienošanās par Latvijas Republikas vēstniecības Krievijas
Federācijā
un Krievijas Federācijas vēstniecības Latvijas Republikā
izvietošanas nosacījumiem
Maskava, Čapligina iela 3

8.pielikums
Latvijas Republikas valdības un Krievijas Federācijas
valdības
vienošanās par Latvijas Republikas vēstniecības Krievijas
Federācijā
un Krievijas Federācijas vēstniecības Latvijas Republikā
izvietošanas nosacījumiem
Maskava, Čapligina iela 3
